Still R50-10, R50-12, R50-15, R50-16 Electric Fork Truck Service Repair Workshop Manual
This factory service repair manual is designed for the Still R50-10, R50-12, R50-15, R50-16 Electric Fork Truck. It provides detailed illustrations and step-by-step instructions, making it suitable for both do-it-yourself enthusiasts and experienced mechanics. The manual offers comprehensive guidance for the complete disassembly of the machine, including hundreds of photos and illustrations to assist with each service and repair procedure.
The manual covers a wide range of models, including R5001, R5003, R5004, R5005, R5006, R5007, R5008, R5009, R5010, R5011, R5012, R5013, R5014, R5015, R5016, R5017, R5018, R5019, R5020, R5021, R5022, R5023, R5024, R5025, R5026, R5027, R5028, R5029, R5030, R5031, R5032, R5033, and R5034.
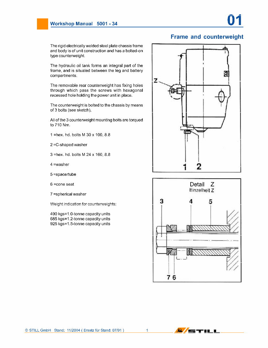
The manual includes detailed information on various components such as frame and counterweight, front axle, power unit, wheels and tires, steering system, hydraulic service brake, SCR drive controller, fuses, electrical installation, battery discharge indicator, hydraulic system, drive motor, pump motor, power steer motor, elevating mast, roller retainer, fork arm, mast pivots, tilt cylinder, important testing hints for checking the electronic power control of the drive, measuring and testing instruments, and more.
It comes in a format compatible with all PC-based Windows operating systems and Mac, and all pages are printable. The manual is available in English and requires Adobe Reader and WinZip for access. With instant access, this manual is a cost-effective solution for maintaining the proper functioning of your vehicle.









