Workshop manual EGU 30 / EGV 20 / EGP 14-20 Instructions on Use of Manual The user will in future receive Workshop Manuals for every specific type of truck (in this case EGU30, EGV20, EGP14/20 models). These are meant to replace the service information bulletins formerly used. The Workshop Manual incorporates the fol- lowing advantages : Easy to use : Easy, speedy and unerring use of the work- shop manual, eliminating the need for time- consuming searching. Reliable updating causing no problems : The break-down of the manual into single sheets results in the association of infor- mation, reducing errors to a minimum. Updating Should single sheets or groups of sheets no longer correspond to the latest enginee- ring design or know-how, updating sheets will be dispatched. Due to organizational reasons this is feasible only within the STILL Organization. Updating exists in the forms shown below : 1. Substituting a sheet You remove the previous sheet and substitute the new one (e.g. in the event of printing errors, changes in illustrations etc.) 2. Inserting additional sheets These sheets carry the page number of the page which must precede the sheets to be inserted. For example, the sheet with page numbers 6a and 6b must be filed directly behind page 6 which must be followed by page number 7 (e.g. in the case of additions or product impro vements). 3. Supplements/repeated supplements Additional sheets which are valid from a given serial number or from a certain production date are printed on coloured paper, in such a case the old sheets must remain in the manual as they still remain valid for the first serial numbers (e.g. in the event of several product improvements). Together with the updated sheets the addressee will in each case also receive instructions advising him how to file the new sheets and whether old sheets must be removed from file and if so, which ones. If sheets must be replaced, the places which comprise the change with regard to the previous sheets will be identified with an asterisk (*).When working with the pre- sent manual please observe the following : In this workshop Manual the standard desi- gns of the corresponding truck models, as well as some widely used variants are dealt with. Working in compliance with the instructions contained in this manual does not entitle to warranty claims. The STILL warranty conditions remain unaffected. Publisher : STILL 26 rue des Frères Lumière ZI - B.P. 225 F-77107 Meaux STILL are constantly striving to improve their products and we therefore reserve the right to change truck specifications and design without notice.
Serial number of the trucks Example : 33 0136 3 00001 => for computers Chronological number Variant Type‘s of truck number Factory Factory : 33 : STILL Truck type : 0136 : EGU 30 0223 : EGV 20 0233 : EGV 20 LB 0227 : EGP 14 0228 : EGP 20 LB : Initial fork lift Variant : year of manufacture 3 : for 2003 4 : for 2004 5 : for 2005 Chronological number : 00001 : Increasing number since the begin of the production. Workshop manual EGU 30 / EGV 20 / EGP 14-20
Part 1 - EGU 30 STILL WAGNER STILL 33 0136 3 00001 EGU 30 Electric Pallet Truck
Workshop manual EGU 30 / EGV 20 / EGP 14-20 Generality Contents Page Description ............................................................................................................. 01 Fork Arm Tolerance Table ..................................................................................... 01 Speed Tolerance Table........................................................................................... 01 Specifications ......................................................................................................... 02 Standards and certifications .................................................................................. 04 Driving Position ...................................................................................................... 05 Working Environmental Conditions........................................................................ 06 Inspection and Maintenance Table ........................................................................ 08 Tightening Torques Table ....................................................................................... 09 Motor Brush Wear Table ........................................................................................ 09
01 Workshop manual EGU 30 / EGV 20 / EGP 14-20 Generality Introduction Description It is a wheeled transport vehicle Its energy source is an accumulator battery It has a tiller steering gear It is equipped with a platform to carry the driver It is a non-stacker truck that is equipped with fork arms to lift pallets from the ground and to carry them. It is used to transport loads whose weight and size are well-determined, because of its construction. This new range of tiller trucks has been planned in order to offer the operator a high degree of safety and comfort. Model EGU 30 has rated capacity 3,300g Fork Arm Tolerance Table These tolerances refer to the values in the technical datasheet Speed Tolerance Table The tolerances refer to the values in the technical datasheet Note: The times relative to the speeds were measured after allowing the gear reducer oil to warm up (approximately 1 hour of continuous traction). h3 0 / -10 mm h13 0 / +7 mm s/e/l +3 / -3 m b5 +2 / -2 mm Traction speed with no load +0 / -5% km/h Traction speed with 3,000 kg +0 / -5% km/h Lifting speed ±5% m/sec Lowering speed +0 / -10% m/sec
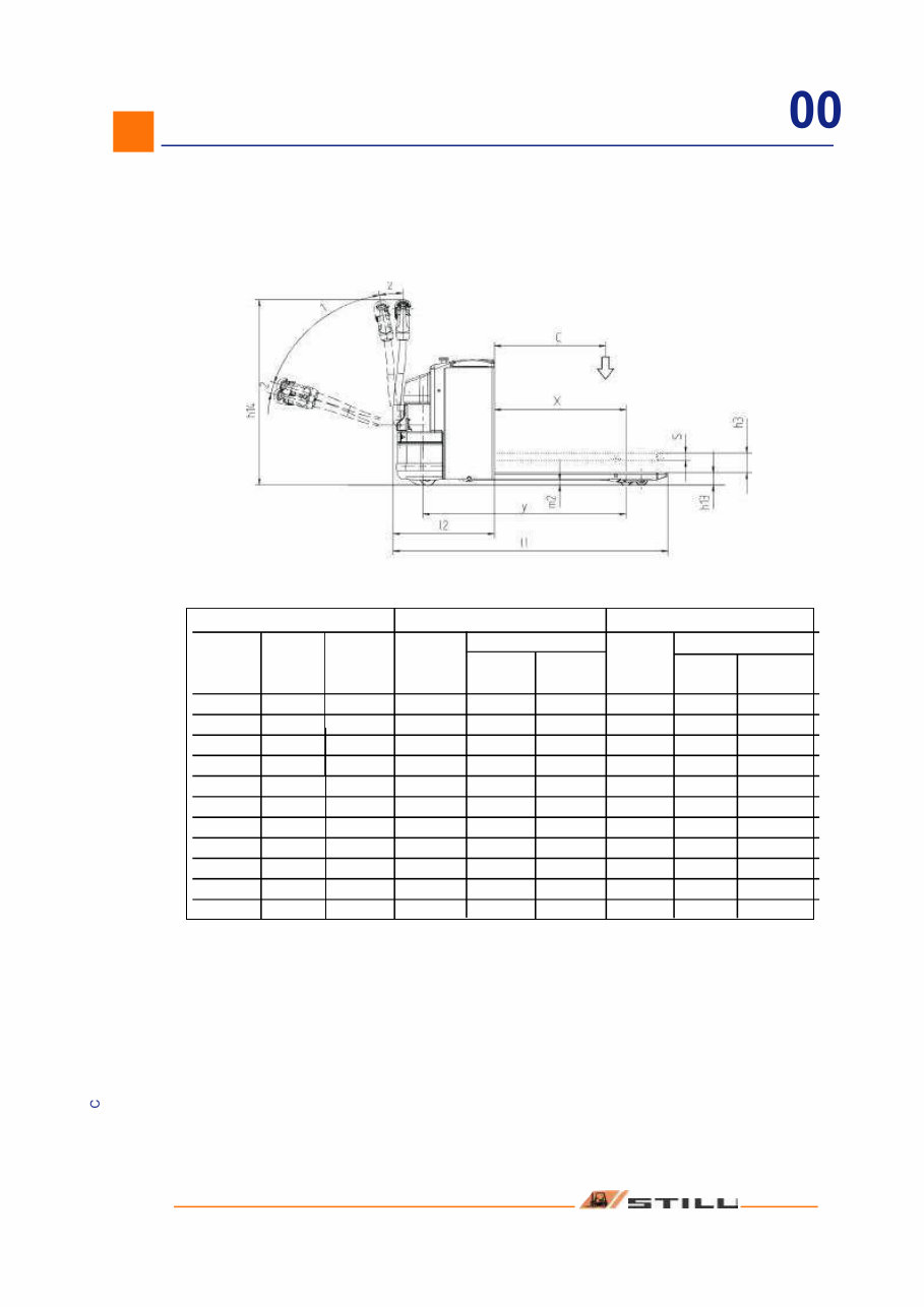
fork arms Standard DIN battery Large DIN battery platfor.up plat. down l c x y l1 Wa* y l1 Wa* mm mm mm mm mm mm mm mm mm 800 400 522 997 1469 1234 1100 1541 1306 980 500 702 1177 1649 1414 1280 1721 1486 1150 600 872 1347 1819 1584 1450 1891 1656 1450 715 1172 1647 2119 1884 1750 2191 1956 1600 800 1322 1797 2269 2034 1900 2341 2106 1980 1000 1702 2177 2649 2414 2280 2721 2486 1980pc 1000 1354 1829 2649 2066 1932 2721 2138 2160 1072,5 1882 2357 2829 2594 2460 2901 2666 2160 pc 1072,5 1534 2009 2829 2246 2112 2901 2318 2400 1200 2122 2597 3069 2834 2700 3141 2906 2400 pc 1200 1774 2249 3069 2486 2352 3141 2558 Specifications 02 Workshop manual EGU 30 / EGV 20 / EGP 14-20 Generality 1 = RUNNING 2 = BRAKING * using the “tiller active in vertical position” function the truck can also be used with the tiller in vertical position 1
EGU 30 AS TO STANDARD VDI 2198 Electric tiller (eased/standing) 1.5 Capacity / Load Q (t) 3 1.6 Barycentre c (mm) 600 (1) 1.8 Load distance from load gear axle with lifted fork arms x (mm) 872 1.9 Wheelbase y (mm) 1347 1419 2.1 Net weight (without battery) kg 354 363 2.2 Load with loaded axle (front/rear) kg 1037 / 2529 (1043 / 2531) (2) 1065 / 2586 (1077 / 2591) (3) 2.3 Load with empty axle (front/rear) kg 432 / 134 (438 / 136) (2) 490 / 161 (503 / 165) (3) 3.1 Solid, super-resilient, pneumatic, polyurethane tyres Polyurethane 3.2 Front wheel dimensions mm 250 / 100 3.3 Rear wheel dimensions mm 85 X 70 3.5 Wheels: front/rear quantity (x = driving wheel) 1x-2 / 4 3.6 Front wheel track b10 (mm) 358 / 398 / 488 3.7 Rear wheel track b11 (mm) / 4.4 Lifting h3 (mm) 135 4.9 Tiller height in running mode (min/max) h14 (mm) 1183 /1380 4.15 Lowered fork arm height h13 (mm) 85 4.19 Total length l1 (mm) 1819 1891 4.20 Length included fork arm shoulder l2 (mm) 671 743 4.21 Total width b1 (mm) 710 4.22 Fork arm dimensions s/e/l (mm) 50 / 162 / 1150 (4) 4.25 External fork arm gauge b5 (mm) 520 / 560 / 650 4.32 Clear span in the middle when loaded m2 (mm) 168 4.33 Pallet working path 1,000x1,200 forking 1,200 Ast3 (mm) 1912 (5) 1984 (5) 4.34 Pallet working path 800x1,200 forking 800 Ast3 (mm) 2112 2184 4.35 Bending radiuses Wa (mm) 1584 1656 5.1 Translation speed (loaded/empty) km/h 6 / 6 5.2 Lifting speed (loaded/empty) m/s 0,03 / 0,076 5.3 Lowering speed (loaded/empty) m/s 0,045 5.7 Surmountable gradient KB30' (loaded/empty) (1) % *,* / *,* 5.8 Max surmountable gradient KB5' (loaded/empty) (1) % *,* / *,* 5.10 Service brake Electric 6.1 Traction motor performance KB 60' kW 2,5 6.2 Lifting motor performance 15% ED W 1,8 6.3 Battery as to British Standard / DIN 43531/35/36 A, B, C DIN 43535 B 6.4 Voltage / Rated capacity V / Ah 24 / 220 (250) 24 / 330 (375) 6.5 Battery weight (± 5%) kg 212 (220) 288 (305) 8.1 Type of control Electronic 8.4 Noise to the truck operator’s ear dB (A) < 70 03 Workshop manual EGU 30 / EGV 20 / EGP 14-20 Generality (1) unless otherwise reported, the table figures refer to fork arm length l = 1,150 mm (2) with standard 24 V / 220 Ah (250 Ah) DIN battery (3) with large 24 V / 330 Ah (375 Ah) DIN battery (4) for other lengths, see the table below the figure 5) fork arm length l = 980 mm
04 Workshop manual EGU 30 / EGV 20 / EGP 14-20 Generality Standards and Certifications The EGU 30 complies with the Machinery Directive 98/37/EC, adapted to cover materials handling trucks with harmonised standards EN 1726 (For trucks with capacity of 10,000 kg or less and tractors with towing capacity of 20,000 N or less), EN 1551 (For trucks with capacity greater than 10,000 kg), prEN 1757 (For manual and semi-manual trucks with pedestrian operator). It also complies with the Electromagnetic Compatibility Directive 89/336/EEC and subsequent amendments, adapted for materials handling trucks by har- monised draft standard EN 12895. Finally, it meets the requirements of standard prEN12053 concerning noise emissions (<70 db). As for the definition of Forward Running Direction, the ISO3691 standard states : In order to be more clear, let us determine a single way to intend the running direction, by identifying it with the traction direction towards the fork arms or towards the operator, avoiding the forward and backward instruction, as shown in the figure below : Running towards the fork arms Running towards the operator Backward Forward
You're Reading a Preview
What's Included?
Lifetime Access
Fast Download Speeds
Online & Offline Access
Access PDF Contents & Bookmarks
Full Search Facility
Print one or all pages of your manual
$37.99$49.99
calcActive())">
Still EGU 30, EGV 20, EGP 14, EGP 20 Forklift Truck Service Repair Workshop Manual
This is a highly detailed factory service repair manual for the Still EGU 30, EGV 20, EGP 14, EGP 20 Forklift Truck. The manual provides step-by-step instructions and detailed illustrations, making it suitable for both do-it-yourself enthusiasts and experienced mechanics. It covers the complete disassembly of the machine, including general, chassis, running axle, gearbox, wheels, driving controls, brake, electrical system, accessories, hydraulics, motors, built-in charger, special tools, and more.
Models Covered:
33 0136 3 00001 EGU 30
33 0223 3 00001 EGV 20
33 0233 3 00001 EGV 20 LB
33 0227 3 00001 EGP 14
33 0228 3 00001 EGP 20
File Format: PDF
Compatibility: All Versions of Windows & Mac
Language: English
Requirements: Adobe Reader & WinZip
This service manual is an inexpensive way to ensure proper functioning of your vehicle. It is instantly accessible, printable, and a valuable resource for forklift truck maintenance and repair.
Recently Viewed
5,521,897Happy Clients
2,594,462eManuals
1,120,453Trusted Sellers
15Years in Business
Price:
Actual Price:
Still EGU 30, EGV 20, EGP 14, EGP 20 Forklift Truck Service Repair Workshop Manual