Komatsu WA250PZ-6 machine parts book. s/n 75750 and up
What's Included?
Lifetime Access
Fast Download Speeds
Online & Offline Access
Access PDF Contents & Bookmarks
Full Search Facility
Print one or all pages of your manual
WA250PZ-6 S/N 75750-UP - Reference: Page: |0000000 Section Description Link Book SAA6D107E-1H S/N 26506237-UP 0000395C B0 ENGINE RELATED PARTS C0 COOLING SYSTEM D0 FUEL SYSTEM E0 ELECTRICAL SYSTEM F0 POWER TRANSMITTING SYSTEM H0 HYDRAULIC SYSTEM J0 FRAME AND ITS RELATED PARTS K0 OPERATOR'S COMPARTMENT AND CONTROL SYSTEM M0 GUARDS AND COVERS S0 SUSPENSION, WHEEL AND THEIR RELATED PARTS T0 WORK EQUIPMENT U0 MARKS AND PLATES V0 AUXILIARY PARTS AND TOOL Y0 FIELD REPAIR SERVICE PARTS www.komatsupartsbook.com
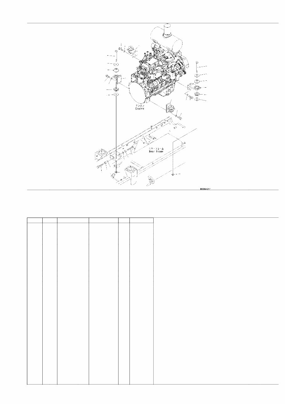
WA250PZ-6 S/N 75750-UP ENGINE RELATED PARTS Reference: Page: B000000 Unit Name Unit No. Engine Related Parts, Without Corrosion Resistor X25-1083360 Engine Related Parts, With Corrosion Resistor X25-1112730 Engine Mounting X25-0962171 Engine Wiring Harness, With Air Conditioner X25-0966181 Engine Wiring Harness, Without Air Conditioner X25-1150090 Exhaust Pipe, Without ROPS Canopy X25-0921221 Exhaust Pipe, With ROPS Canopy X25-1150110 Damper X25-0390690 www.komatsupartsbook.com
WA250PZ-6 S/N 75750-UP Engine Related Parts, Without Corrosion Resistor Reference: X25-1083360 Page: B001000 FIG. Name FIG. No. Engine Related Parts B0000-001001 www.komatsupartsbook.com
WA250PZ-6 S/N 75750-UP JD023932 Reference: B0000-001001 Page: B001001 1 2 3 WA250PZ-6 S/N 75750-UP Engine Related Parts (#75750-) Reference: B0000-001001 Page: B001001 Index Code Part Number Description Qty Serial No. 1 418-S62-4820 Plate 1 75750- 2 418-S62-4850 Bracket 1 75750- 3 418-S62-4860 Bracket 1 75750- www.komatsupartsbook.com
WA250PZ-6 S/N 75750-UP Engine Related Parts, With Corrosion Resistor Reference: X25-1112730 Page: B002000 FIG. Name FIG. No. Engine Related Parts B0000-002001 www.komatsupartsbook.com
WA250PZ-6 S/N 75750-UP JD023933 Reference: B0000-002001 Page: B002001 3 2 1 WA250PZ-6 S/N 75750-UP Engine Related Parts (#75750-) Reference: B0000-002001 Page: B002001 Index Code Part Number Description Qty Serial No. 1 600-051-2160 Clip 1 75750- 2 01010-81020 Bolt 1 75750- 3 01643-31032 Washer 1 75750- www.komatsupartsbook.com
Komatsu WA250PZ-6 machine parts book is a fully illustrated parts list with exploded views, covering serial numbers 75750 and up. With 1411 pages, this manual is a valuable tool for assisting mechanics in disassembly and assembly, providing reference to the exploded views. It is useful for both professional mechanics and DIY enthusiasts.
Recently Viewed
5,521,897Happy Clients
2,594,462eManuals
1,120,453Trusted Sellers
15Years in Business
Price:
Actual Price:
Komatsu WA250PZ-6 machine parts book. s/n 75750 and up