Page 1 1EXCAVATOR - III SERIES TABLE OF CONTENTS Electrical Circuits Solar 070-III .................................................................................................... 4 Solar 130LC-III................................................................................................ 5 Solar 130W-III ................................................................................................. 6 Solar 170LC-III................................................................................................ 7 Solar 170W-III ................................................................................................. 8 Solar 170W-III ................................................................................................. 9 Solar 200W-III ............................................................................................... 10 Solar 220LC-III.............................................................................................. 11 Solar 280LC-III.............................................................................................. 12 Solar 330LC-III.............................................................................................. 13 Solar 400LC-III.............................................................................................. 14 Solar 450-III .................................................................................................. 15 Hydraulic Circuits Solar 070-III .................................................................................................. 17 Solar 070-III (with Dozer) .............................................................................. 18 Solar 130LC-III.............................................................................................. 19 Solar 130LC-III.............................................................................................. 20 Solar 130LC-III.............................................................................................. 21 Solar 130W-III (S/N 0001 thru 1720) with DX22 Control Valve..................... 22 Solar 130W-III (S/N 0001 thru 0097) ............................................................ 23 Solar 130W-III (0098 and Up) ....................................................................... 24 Solar 170LC-III.............................................................................................. 25 Solar 170W-III (Standard) ............................................................................. 26 Solar 170W-III (Standard) ............................................................................. 27 Solar 170W-III (Optional) .............................................................................. 28 Solar 200W-III (with Standard Boom) (S/N 0001 thru 0448) ........................ 29 Solar 200W-III (with Standard Boom) (S/N 0449 and Up) ............................ 30 Solar 200W-III (with Articulated Boom) (S/N 0001 thru 0448) ...................... 31 Solar 200W-III (with Articulated Boom) (S/N 0449 and Up) ......................... 32 Solar 220LC-III (S/N 0216 thru 0360) ........................................................... 33 Solar 220LC-III (S/N 0361 thru 1420) ........................................................... 34
Page 2 Solar 220LC-III (S/N 1421 thru 1880) ........................................................... 35 Solar 220LC-III (S/N 1881 and Up)............................................................... 36 Solar 280LC-III (S/N 5001 thru 5070) ........................................................... 37 Solar 280LC-III (S/N 5071 thru 5274) ........................................................... 38 Solar 280LC-III (S/N 5275 thru 5674) ........................................................... 39 Solar 280LC-III (S/N 5675 and Up)............................................................... 40 Solar 330LC-III.............................................................................................. 41 Solar 400LC-III.............................................................................................. 42 Solar 450-III (S/N 0001 thru 0003) ............................................................... 43 Solar 450-III (S/N 0004 thru 0035) ............................................................... 44 Solar 450-III (S/N 0036 and Up) ................................................................... 45
Page 3 2ELECTRICAL CIRCUITS
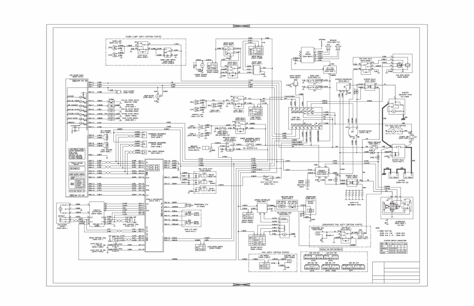
Page 4 SOLAR 070-III 30R 30B 0.85BR LAMP RELAY 85 87 87a 86 30 (2544-9029 ) 0.5RG 2RY (RH) 0.85RG 0.85B 2RG 0.5B (2549-1132D1) 0.5RY WORKING LAMP LAMP SWITCH E M L OFF 1 2 PREHEAT ON START B BR R1 R2 C PST TML OFF ACC STARTER SWITCH CONNECTION CIRCUIT BREAKER BATTERY RELAY A B BR E B C BR R1 R2 ACC PP B D C S N E P B STARTER CONTROLLER STARTER SWITCH PREHEAT CONTROLLER 1 2 8 4 3 7 6 5 THERMO SWITCH 10A FUSE BOX CIGAR LIGHTER 1 7 2 8 11 9 CAR STEREO 2 3 1 DC / DC CONVERTER (RH) (LH) SPEAKER ROOM LAMP HORN RELAY E F- F+ B E ALTERNATOR HORN SWITCH 1 M - + - + + - BATTERY 0.85L 0.85LW 0.85LY 0.85LB 0.85B 0.5B 0.85RB 0.85B 0.85BW 0.85B 0.5WG 0.5Br 0.85BY 0.5BY 0.5GrR 0.5BW 0.5GrL 0.85L 5Y 5W 2R 30R 30B 30R 5W 0.85WG 5B 0.85B 0.85BrW 0.85Br 0.5BW 0.5BW 0.5LB 0.85Y PILOT CUT-OFF SWITCH 0.5RB 0.85BY 0.85B 0.85BR ANTENNA 0.85YB (2544-9029 ) (2531-1003 ) (2541-9016A) (2541-9014 )x2 (2534-9063 )x2 (2545-9013 ) (2510-1006 ) (2543-9015 ) (2544-1009A) STARTER RELAY (2549-1136 ) (2527-9004 ) (2544-9024 ) (2506-9009 )x2 (2502-6005A) (2523-9002 ) (66.27435 -6007) I R (ON JOYSTICK L.H) 10A 15A 10A 15A 10A 15A 10A 15A 10A 15A 10A 10A 8 17 16 7 6 20 14 5 19 13 15 4 18 12 3 11 2 10 1 9 1.25WR 5W 5W 0.85R 0.85L 1.25RB 0.85W NOTE. 1. DIODE PART NO. DIODE 6 15A 1.25LR/0.85LR 2RY 0.85WR 12V 80AH 12V 80AH : 2548-1015 (2516-9011 ) 0.85B 0.85RY HORN 1 (2420-9095 ) 2RY 24V 60A 0.85LR DIODE 2 1.25WR 0.85RW E L M OFF 1 2 BLOWER SWITCH (2549-1132D3) 0.5RW (2543-9027 ) 3 1 2 AIRCON CONTROLLER 10 0.85L 0.5WG 0.85RW 0.85WG 0.85Br 30 86 87a 87 85 0.85L 0.85LR 0.85L (2523-9009A) ENG STOP MOTOR 0.85B E P2 B P1 A 0.5B ENG STOP RELAY 0.85LY 0.85LW 0.5LR 85 87 87a 86 30 (2544-9029 ) A 0.85RW/0.85WR 1.25WR 0.85WR 0.5LR 0.85WR DIODE 1 5WL FUSIBLE LINK (2527-1020 ) 5W 5W 2WR 2WR 0.5G DIODE 1 ~ 5 : 2548-1014 0.85Y 0.85RW 0.85YG 0.5WR 5W 0.5Br 4 3 1 2 3 ON OFF L E H 3 AIRCON SWITCH (2549-1132D2) (2534-1127 ) 0.85B 0.85RG (LH) 0.85Y 1.25LR/0.85LR 0.85LR 1.25LR 10W E B 0.5RW 0.85W - + - + WASHER SWITCH 1 5 2 3 4 WIPER TIMER WIPER RELAY M S P B E WIPER MOTOR M L E OFF WIPER SWITCH P + - WINDOW WASHER 0.85L 0.85LB 0.85LW 0.85LB 0.5B 0.85B 0.85Y 0.85B 0.5B 0.85B 0.5RB 0.5LY 0.5L 0.5B 0.85Y 0.85B DIODE 6 (2538-9005 ) (2549-1132D6) (2549-1132D5) (2554-9005A) (2537-9002 ) (2544-9029 ) 0.85L 85 87 87a 86 30 0.5LR ON OFF L E 2 4 6 13 11 9 7 8 10 12 5 3 1 AMP MIC 13P TERMINAL NO FOR CONTROLLER INT 0.5LY 0.5LR 0.5L 0.5RW 0.5B P (2401-9173 ) 2WR C NO NC 0.5B (1) (2) 0.5B 0.5RW B E 10W 0.5YW 5 4 0.5YG 0.5RB 4 5 6 0.85LR (2534-1129 ) HEAD LAMP ON 1.25RB/0.85L 0.85RW 0.85R 0.5RW 0.5RW 0.85R 0.5LB 0.85L 0.85B HORN 2 (2516-9012 ) 0.85RY 0.85RY H.F L.F FUEL PUMP ASS'Y (RH) (LH) 0.85RW 0.85B 0.85RW 0.85B (2534-1127 )x2 CABIN LAMP CABIN LAMP (OPTION) 2B (2549-1134 ) (2204-6032 ) RECEIVER DRIER 0.5B DIODE 5 CLUTCH MAGNET HIGH PRESS CUT OFF SW CUT OFF SW LOW PRESS (2208-6010B) (2920-9031B) 0.85BW 0.85LW COMPRESSOR AIR HANDLING UNIT 0.85B 0.85B (65.26803-7014) GLOW PLUG 5BW C (65.26201-7044) B A STARTER 24V 4.5KW 0.85BR B C D PP PREHEAT RELAY (2544-1009A) 0.85Br 0.85L 0.85Br 5W DIODE 3 DIODE 4 5W 5W TIME DELAY 10 5 WATER TEMP AIR CLEANER CHARGE PREHEAT L2 L5 L4 L6 L3 0.85LR 0.5W 8 10 0.5YB 0.85GW 0.5LB 4 1 11 0.5YB 0.85B 0.85LR 12 5 3 2 ENG OIL PRESS ILLUMINATION W/T GAUGE FUEL GAUGE HOUR METER H L1 W F (2539-9030 ) GAUGE PANEL 2 0.85L 0.85L 0.5RW 0.5B 0.5BY (-) 12 (+) 0.85YR 0.5B 0.5WR 6 9 3 0.85YB 0.5BY 0.85GW 9 4 0.85BY 0.85YR 0.85R 7 11 BUZZER 0.85B (2543-9029A) CONTROL UNIT CIRCUIT 0.85R (2516-1102A) PILOT BUZZER 8 7 (2547-1010 ) (2547-9016A) (65.27441-6002) (66.27435-6008) (2170-9005 ) E/G OIL PRESS SWITCH WATER TEMP SWITCH INDICATOR WATER TEMP SENDER FUEL SENDER 0.85B 0.85B 0.5WG 0.85R 6 1 0.85R PILOT FILTER 0.5WR 0.5WR 0.5G (2549-1132D4) HIGH SPEED SWITCH OFF ON E L 0.85Y 0.85YR HELLA (2RL006846-101) ROTATING BEACON (OPTION) 0.85B 0.85R 0.5WG 0.85L 0.85RB CONTROL UNIT AMP MIC 13P 13 12 10 8 7 11 9 5 3 1 2 6 4 GAUGE PANEL 0.85BW 0.5WR 0.5RW 0.5WG 0.5WG 0.5WG 0.85B (HIGH (A3) CUT OFF) SPEED) (PILOT (2420-9323C) SOL-VALVE ASS'Y (A2) 0.85BrW 0.85B 0.85B (BREAKER) (A1) 0.85YR 0.85YG 0.85BG PILOT FILTER SWITCH (2549-6051 ) 0.85B 0.85BG 1.25RW 87a 0.85Y 0.5B BREAKER RELAY (2544-9029 ) 87 85 86 30 0.85RY 0.5BrY +(2190-2036D1) BREAKER SWITCH (2549-9098 ) 0.5B 10 7 1 5 9 (2420-9095 ) (ON JOYSTICK R.H) HORN SWITCH 2 0.5RB / BREAKER SWITCH 0.85BrW 0.5WR 0.5G 0.5G 0.5BrY 0.5WR 0.85RY 0.85RY 0.85R 0.5LB 0.5LB 0.5LB BREAKER (OPTION) 0.85RY 0.5W ELECTRICAL DIAGRAM DOOSAN INFRACORE NO. Model Solar 70-III Name HAAE1410
Page 5 SOLAR 130LC-III ELECTRICAL DIAGRAM DOOSAN INFRACORE NO. Model Solar 130-III Name HAAE1670
The Doosan DD80 / DD80L Dozers Workshop Service Repair and Troubleshooting Manual is a comprehensive guide designed for both professional mechanics and DIY enthusiasts. It provides detailed explanations of specifications, operation principles, disassembly and reassembly procedures, troubleshooting techniques, and maintenance standards. This manual is an invaluable resource for any dozer owner or technician, offering guidance through the correct procedures to repair the machine and ensure smooth operation.
Key features of the manual include:
Specifications
Operation Principle
Disassembly and Reassembly
Troubleshooting
Maintenance Standards
Circuit Diagram
Hydraulic Schematic
Whether you are a seasoned operator or new to the world of dozers, investing in this manual will provide you with the knowledge and resources needed to effectively maintain and repair your Doosan DD80 or DD80L dozer. Keep your equipment running smoothly and avoid downtime with this comprehensive manual.