2010 Subaru Tribeca Service & Repair Manual Software
What's Included?
Lifetime Access
Fast Download Speeds
Offline Viewing
Access Contents & Bookmarks
Full Search Facility
Print one or all pages of your manual
TRANSMISSION Automatic Transmission - Control System - Mechanism & Function SELECT LEVER The automatic transmission select lever can be moved to any of the 4 ranges and the transmission enters sports mode when the lever is moved laterally from D range, and further switches to sports shift mode (manual mode) when the lever is moved forward ("+" direction) or rearward ("-" direction). The select lever makes shift direction (longitudinal) movements as well as select direction (lateral) movements. The select lever is guided by a gate to make these movements. In the sports shift mode, the transmission upshifts when the selector lever is moved forward ("+" direction) and downshifts when the lever is moved rearward ("-" direction). To transmit movements of the select lever to the transmission, a select cable is used. The select lever mechanism has a detent spring. It ensures more precise positioning of the select lever. Fig. 1: Select Lever Shifting Mechanism Courtesy of SUBARU OF AMERICA, INC. 2011 Subaru Tribeca Premium TRANSMISSION Automatic Transmission - Control System - Mechanism & Function 2011 Subaru Tribeca Premium TRANSMISSION Automatic Transmission - Control System - Mechanism & Function
SHIFT LOCK AND KEY INTERLOCK SYSTEM GENERAL To increase safety during standing start, the shift lock system prevents movement of the select lever from the "P" position to any other position unless the brake pedal is depressed. This system is also provided with a key interlock function which prevents removal of the ignition key from the key cylinder unless the selector lever is placed in the "P" position. Fig. 2: Identifying Shift Lock And Key Interlock System Components 2011 Subaru Tribeca Premium TRANSMISSION Automatic Transmission - Control System - Mechanism & Function
SHIFT LOCK SYSTEM OPERATION The shift lock system has a solenoid-operated plunger (1). With the select lever in the P position, the plunger remains extended, holding the lock arm (2) in its pushed out (locking) position. When the brake pedal is depressed with the ignition switch in either the ON or START position, the solenoid is energized and the plunger is retracted. This causes the lock arm to lift to the select lever release position. The select lever now can be moved to any other position. The P position of the select lever is detected by the inhibitor switch (3). Fig. 3: Shift Lock System Operation Diagram Courtesy of SUBARU OF AMERICA, INC. KEY INTERLOCK FUNCTION When the select lever is at any position other than P, the solenoid is energized and its guide pin extends to hold the lock pin in its pushed out position. Held in its extended position, the lock pin interferes with the stopper portion of the rotator which turns together with the ignition key. Thus, the ignition key cannot be 2011 Subaru Tribeca Premium TRANSMISSION Automatic Transmission - Control System - Mechanism & Function
rotated to the "LOCK" position. Fig. 4: Key Interlock Function Diagram (Select Lever At Other Than P Position) Courtesy of SUBARU OF AMERICA, INC. When the select lever is moved to "P", the "P" position switch in the select lever assembly operates, deenergizing the solenoid. As the push force of the guide pin is removed, the return spring moves the lock pin toward the solenoid and the lock pin becomes clear of the rotator stopper. Then the key can be rotated to the LOCK position and removed from the ignition switch. 2011 Subaru Tribeca Premium TRANSMISSION Automatic Transmission - Control System - Mechanism & Function
Fig. 5: Key Interlock Function Diagram (Select Lever At P Position) Courtesy of SUBARU OF AMERICA, INC. 2011 Subaru Tribeca Premium TRANSMISSION Automatic Transmission - Control System - Mechanism & Function
Fig. 2: Automatic Transmission Diagnostic Procedure (2 Of 2) Courtesy of SUBARU OF AMERICA, INC. CHECK LIST FOR INTERVIEW CHECK Check the following item when problem has occurred. NOTE: Use copies of this illustration for interviewing customers. 2011 Subaru Tribeca Premium 2011 TRANSMISSION Automatic Transmission 5AT (Diagnostics) - Tribeca
Fig. 3: Check List For Interview Courtesy of SUBARU OF AMERICA, INC. GENERAL DESCRIPTION CAUTION SRS AIRBAG SYSTEM The airbag system wiring harness is routed near the TCM. MEASUREMENT When measuring the voltage and resistance of the ECM, TCM or each sensor, use a tapered pin with a diameter of less than 0.64 mm (0.025 in) in order to avoid poor contact. Do not insert a pin of more than 0.65 mm (0.026 in) diameter. INSPECTION BATTERY Measure the battery voltage and specific gravity of electrolyte. Standard voltage: 12 V or more Specific gravity: 1.260 or more TRANSMISSION GROUND Make sure that the ground terminal bolt is tightened securely. Tightening torque: 7 N.m (0.7 kgf-m, 5.2 ft-lb) CAUTION: All airbag system wiring harnesses and connectors are colored yellow. Do not use an electric test equipment to check these circuits. Be careful not to damage the airbag system wiring harness when performing diagnostics or servicing the TCM. 2011 Subaru Tribeca Premium 2011 TRANSMISSION Automatic Transmission 5AT (Diagnostics) - Tribeca
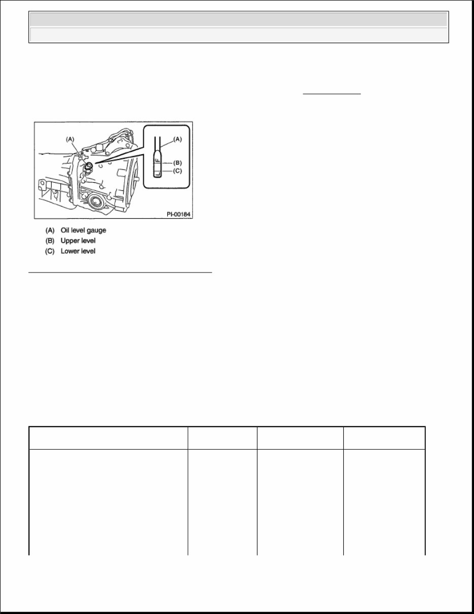
Fig. 4: Identifying Ground Terminal Courtesy of SUBARU OF AMERICA, INC. ATF LEVEL Make sure that ATF level is the specified amount. Refer to INSPECTION , Automatic Transmission Fluid. Fig. 5: Identifying ATF Level Courtesy of SUBARU OF AMERICA, INC. 2011 Subaru Tribeca Premium 2011 TRANSMISSION Automatic Transmission 5AT (Diagnostics) - Tribeca
FRONT DIFFERENTIAL OIL LEVEL Make sure the front differential oil level is the specified amount. Refer to INSPECTION , Differential Gear Oil. Fig. 6: Identifying Front Differential Oil Level Courtesy of SUBARU OF AMERICA, INC. OPERATION OF SHIFT SELECT LEVER Make sure there is no noise, dragging or contact pattern in each select lever range. PREPARATION TOOL SPECIAL TOOL PREPARATION TOOL SPECIFICATION WARNING: Stop the engine while checking operation of the select lever. ILLUSTRATION TOOL NUMBER DESCRIPTION REMARKS 1B022XU0 SUBARU SELECT MONITOR III KIT Used for troubleshooting the electrical system. 2011 Subaru Tribeca Premium 2011 TRANSMISSION Automatic Transmission 5AT (Diagnostics) - Tribeca
If you are in need of a repair manual for your 2010 Subaru Tribeca, look no further. Our accessible repair manual software provides comprehensive coverage and is suitable for both professional mechanics and DIY enthusiasts.
Gone are the days of purchasing traditional service manuals in book format at a higher cost. Our repair manual software offers the same valuable information at a more affordable price and in a more convenient digital format.
Whether you require guidance for brake repairs, suspension component replacements, engine troubleshooting, or standard maintenance procedures, this repair manual software for the Subaru Tribeca is the ideal solution.
With this software, you will have access to a wealth of service information covering brakes, engine, suspension, steering, drivetrain, electrical systems, heating, air conditioning, and more. It equips you with the knowledge to address any issue with your vehicle.
By taking on the repairs yourself, you can significantly reduce costs typically incurred from professional mechanics. Our 2010 Subaru Tribeca repair manual software is designed to be user-friendly and is compatible with Windows, Mac computers, smartphones, and tablets.
Recently Viewed
5,521,897Happy Clients
2,594,462eManuals
1,120,453Trusted Sellers
15Years in Business
Price:
Actual Price:
2010 Subaru Tribeca Service & Repair Manual Software