2003 SEAT Ibiza 3 Doors Download Service & Repair Manual
What's Included?
Lifetime Access
Fast Download Speeds
Offline Viewing
Access Contents & Bookmarks
Full Search Facility
Print one or all pages of your manual
Workshop Manual Córdoba 2003 ➤ Ibiza 2002 ➤ 02R, 5-speed Edition 03.2009 Service Service Department. Technical Information
List of Workshop Manual Repair GroupsList of Workshop Manual Repair GroupsList of Workshop Manual Repair Groups Repair Group 00 - Technical data 30 - Clutch 34 - Controls, housing 35 - Gears, shafts 39 - Final drive - differential Service
00 – Technical data 1 Gearbox identification Location on the gearbox The 02R 5-speed manual gearbox is fitted in the Ibiza 2002 ▸, Córdoba 2003▸ see table ⇒ page 1 . Code letters and date of manufacture -arrow 1-, type of gearbox -arrow 2-. Identification letter allocation ⇒ page 1 . Type of gearbox 02R 5-speed manual gearbox -arrow 2-. Engine code and manufacture date of gearbox Example: EWR 11 09 1 I I I l I I I l Identification letters Day Month Model year 2001 Any additional data is related to the manufacturing process. Note The gearbox identification letters can also be found on the vehicle data sticker. 1.1 Code letters, assembly allocation, ratios, capacities Manual gearbox housing 02R, 5-speed Identification let‐ ters EWT - GGU - JDA JDA EWR - GGV EWR - JCZ JDB - GVZ - HWY JDE JDD JXY Corre‐ spond‐ ence Type Ibiza 2002 ▸, Córdoba 2003▸ Ibiza 2002 ▸, Córdoba 2003▸ Ibiza 2002 ▸, Córdoba 2003▸ Ibiza 2002 ▸, Córdoba 2003▸ Ibiza 2002 ▸ Ibiza 2002 ▸, Córdoba 2003▸ Ibiza 2002 ▸, Córdoba 2003▸ Ibiza 2002 ▸, Córdoba 2003▸ Córdoba 2003 ➤ , Ibiza 2002 ➤ 02R, 5-speed - Edition 03.2009 1. Gearbox identification 1
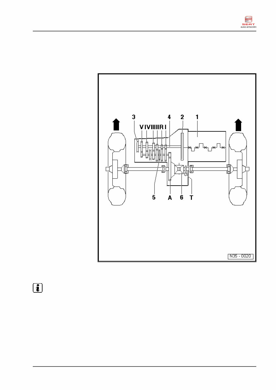
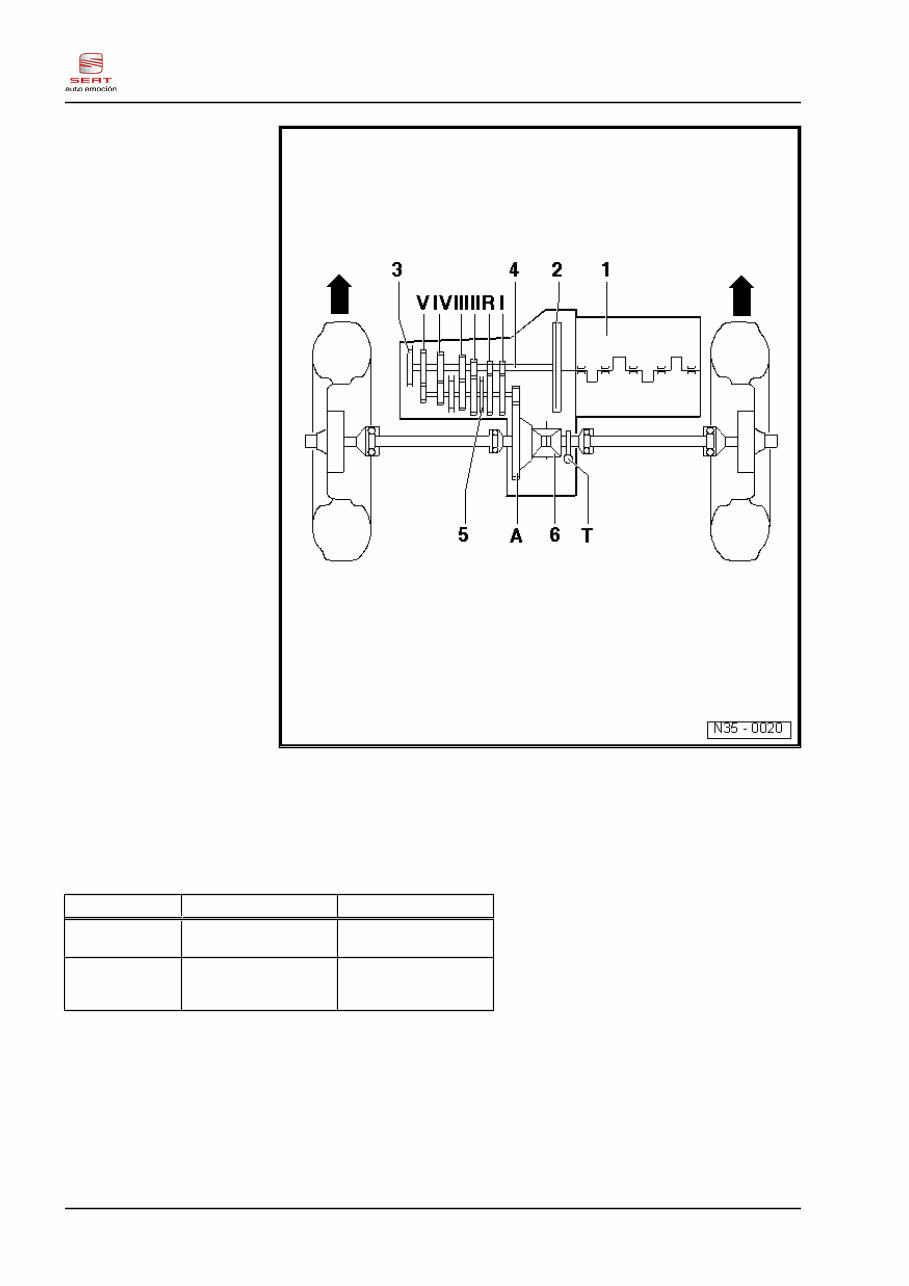
2 Overview of the drive force Designation The -arrows- indicate direction of movement. 1 - Engine 2 - Clutch 3 - Manual gearbox housing 4 - Input shaft: 5 - Secondary shaft/pinion as‐ sembly 6 - Differential: Gear ratios Note The -arrows- indicate direction of movement. Córdoba 2003 ➤ , Ibiza 2002 ➤ 02R, 5-speed - Edition 03.2009 2. Overview of the drive force 3
I - 1. Road speed II - 2. Road speed III - 3. Road speed IV - 4. Road speed V - 5. Road speed R - speed in reverse A - Final group T - Speedometer operation 2.1 Calculation of the gear ratio “i” The gear ratio between two gears, is obtained by dividing the number of teeth on the driven gear (Z2), by the number of teeth on the driving gear (Z1). Example: Gears 5. Road speed Final group driving gear (primary) 45 (Z 1 = driving gear) 19 (Z 1 = driving gear) Driven gear (secon‐ dary) 34 (Z 2 = driving gear) 60 (Z 2 = driving gear) i = Z 2 : Z 1 2) In this way we can find out: i G = Gear ratio = ZG 2 : ZG 1 = 34 : 45 = 0.756 i A = Transmission ratio for bevel gear assembly = ZA 2 : ZA 1 = 60 : 19 = 3,158 It is obtained by multiplying the gear ratios of the longest gear and the differential. Córdoba 2003 ➤ , Ibiza 2002 ➤ 02R, 5-speed - Edition 03.2009 4 Rep. Gr.00 - Technical data
i total. = overall ratio = i G x i A = 0.756 x 3.158 = 2.387 2) Z 1 = Number of teeth of driver pinion, Z 2 = number of teeth of driven pinion. Córdoba 2003 ➤ , Ibiza 2002 ➤ 02R, 5-speed - Edition 03.2009 2. Overview of the drive force 5
3 General repair instructions For proper repair of the gearbox, it is important to work with the greatest of care and absolute cleanliness, and to use tools that are in perfect condition. Naturally, the customary basic safety rules must be observed during repair work. A series of general instructions for repair work is now listed, and these are mentioned several times throughout the course of the Repair Manual. These instructions are valid for this Repair Man‐ ual, Contact corrosion ♦ The gearbox casing is made of magnesium alloy. ♦ The surfaces of the bolts and other parts which are in direct contact with the gearbox are made of a material which is es‐ pecially suitable for the magnesium casing. ♦ If inappropriate parts are used (bolts, nuts, washers...), corro‐ sion will be produced through contact and the gearbox casing will be damaged. ♦ If you are doubtful as to whether it is possible to re-use certain parts, it is advisable to fit new ones⇒ Current parts catalogue. WARNING ♦ Only use genuine Seat parts! ♦ Damage from contact corrosion is not covered under the warranty! Gearbox: ♦ Thoroughly clean unions and adjacent areas before removing. ♦ Select the correct bolts and other components ⇒ Parts cata‐ logue . ♦ When installing the manual gearbox, ensure that the dowel sleeves are correctly housed between engine and gearbox. ♦ When installing support stands and waxed components, the contact surfaces must be cleaned. The contact surfaces must be free from wax and grease. ♦ After replacing the gearbox, check oil level and top up if nec‐ essary. ♦ Filling amounts and oil type specifications. Córdoba 2003 ➤ , Ibiza 2002 ➤ 02R, 5-speed - Edition 03.2009 6 Rep. Gr.00 - Technical data
The 2003 SEAT Ibiza 3 Doors Download Service & Repair Manual is the ultimate guide for owners of the SEAT Ibiza 3-door model released in 2003. Whether you are a DIY enthusiast or a professional mechanic, this comprehensive manual provides all the necessary information and step-by-step instructions to service and repair your vehicle.
This manual covers various aspects of the SEAT Ibiza 3-door, including the engine, transmission, suspension, brakes, electrical system, and more. It is designed to help you diagnose and fix common issues, perform routine maintenance tasks, and even undertake more extensive repairs.
With this manual, you can easily access detailed diagrams, illustrations, and explanations to aid in your repair work. Whether you need to replace a component, troubleshoot a problem, or perform routine maintenance, this manual has got you covered. It is available for download, allowing you to have instant access to the information you need, anytime and anywhere.
The 2003 SEAT Ibiza 3 Doors Download Service & Repair Manual is suitable for the following models:
SEAT Ibiza 3 Doors - 2003
Don't let mechanical issues hold you back from enjoying your SEAT Ibiza 3-door to the fullest. Get the 2003 SEAT Ibiza 3 Doors Download Service & Repair Manual today and ensure your vehicle stays in top shape for years to come.
Recently Viewed
5,521,897Happy Clients
2,594,462eManuals
1,120,453Trusted Sellers
15Years in Business
Price:
Actual Price:
2003 SEAT Ibiza 3 Doors Download Service & Repair Manual