Sharp Air Conditioner AY-AP24CJ-AE-A24CJ Service Manual
What's Included?
Lifetime Access
Fast Download Speeds
Online & Offline Access
Access PDF Contents & Bookmarks
Full Search Facility
Print one or all pages of your manual
AY-AP18CJ AY-AP24CJ AE-A18CJ AE-A24CJ INDOOR UNIT AY-AP18CJ AY-AP24CJ OUTDOOR UNIT MODELS SERVICE MANUAL S0242AYAP24CJ SHARP CORPORATION In the interests of user-safety (Required by safety regulations in some countries) the set should be restored to its original condition and only parts identical to those specified should be used. SPLIT SYSTEM ROOM AIR CONDITIONERS AE-A18CJ AE-A24CJ TABLE OF CONTENTS Page SPECIFICATIONS ............................................................................................................................................. 2 EXTERNAL DIMENSIONS ............................................................................................................................... 3 WIRING DIAGRAMS ......................................................................................................................................... 4 ELECTRICAL PARTS ....................................................................................................................................... 6 MICROCOMPUTER CONTROL SYSTEM ....................................................................................................... 7 FUNCTIONS ................................................................................................................................................... 13 TROUBLESHOOTING GUIDE OF CONTROL CIRCUIT ................................................................................ 20 REFRIGERATION CYCLE .............................................................................................................................. 25 PERFORMANCE CURVES ............................................................................................................................ 27 REFRIGERANT PIPE INSTALLATION WORKS ............................................................................................. 28 DISASSEMBLING PROCEDURE ................................................................................................................... 29 REPLACEMENT PARTS LIST ........................................................................................................................ 39
AY-AP18CJ AY-AP24CJ AE-A18CJ AE-A24CJ 2 ITEMS INDOOR UNIT OUTDOOR UNIT INDOOR UNIT OUTDOOR UNIT AY-AP18CJ AE-A18CJ AY-AP24CJ AE-A24CJ Cooling capacity kW 5.0 6.5 Heating capacity kW 5.8 8.1 Moisture removal Liters/h 1.6 2.2 Electrical data Phase – Single Rated frequency Hz 50 Rated voltage V 230 – 240 Rated current Cool A 9.4 14.2 Heat A 8.6 14.6 Rated input Cool kW 2.17 3.00 Heat kW 1.98 3.09 Power factor Cool % 100 – 96 92 – 88 Heat % 100 – 96 92 – 88 Compressor Type Hermetically sealed rotary type Model PH33VPET 2JS464D3AA02 Oil charge 900cc [DIAMOND MS32(N-1)] 1130cc (ATMOS M60 or SUNISO 4GD1D) Refrigerant system Evaporator Louver fin and Grooved tube type Condenser Corrgate fin and Grooved tube type Control Capillary tube Refrigerant volume 1380g 1820g De-lce system Micro computer controled reverse sysetm Noise level High dB(A) 40 52 44 54 (at cooling) Med. dB(A) 36 – 39 – Low dB(A) 34 – 37 – Fan system Drive Direct drive Air flow quantity High m 3 /min. 15.3 52 18.1 48 (at cooling) Med. m 3 /min. 13.4 – 15.0 – Low m 3 /min. 11.3 – 13.7 – Fan Cross flow fan Propeller fan Cross flow fan Propeller fan Connections Refrigerant coupling Flare type Refrigerant tube size Gas, Liquid 1/2", 1/4" 5/8", 1/4" Drain piping mm O.D ø 20 Others Safety device Compressor: Internal protector Compressor: Internal protector Fan motors: Thermal protector(Internal) Fuse, Micro computer control Air filters Polypropylene net (Washable) Net dimensions Width mm 1040 (1155) 890 (1020) 1040 (1155) 890 (1020) (Cartont dimensions) Height mm 325 (300) 645 (735) 325 (300) 645 (735) Depth mm 220 (385) 327 (398) 220 (385) 327 (398) Net weight (Gross weight) kg 16 (21) 58 (62) 16 (21) 64 (68) Note: The condition of star ( ) marked item are “ AS/NZS3823.1.1 : 1998’ ”. SPECIFICATIONS
3 AY-AP18CJ AY-AP24CJ AE-A18CJ AE-A24CJ 570 645 202 122 320 342 890 290 37 30 172 25 62 46.3 10.5 ø4.5 EXTERNAL DIMENSIONS Figure E-1. INDOOR UNIT Figure E-2. OUTDOOR UNIT 220 1750 Power supply cord (AY-AP18CJ only) [Length unit : mm] 325 1040 Remote controller 58 18.5 22 140 TEMP. INVERTER AIR CONDITIONER TEMP. MODE FAN TIMER
AY-AP18CJ AY-AP24CJ AE-A18CJ AE-A24CJ 4 WIRING DIAGRAMS Figure W-1. Wiring Diagram for AY-AP18CJ Figure W-2. Wiring Diagram for AE-A18CJ
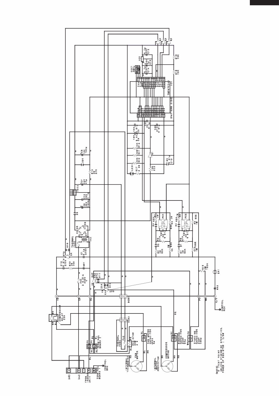
5 AY-AP18CJ AY-AP24CJ AE-A18CJ AE-A24CJ Figure W-3. Wiring Diagram for AY-AP24CJ Figure W-4. Wiring Diagram for AE-A24CJ
AY-AP18CJ AY-AP24CJ AE-A18CJ AE-A24CJ 6 ELECTRICAL PARTS Part Part Name Items Specifications No. AY-AP18CJ AY-AP24CJ 1 Terminal Board Rating 300V 25A 2 Fan motor Rating 400V 2μF Capacitor 3 Relay-1 Rating AC250V 20A – (RY1) Coil Volt.; 12V 4 Relay-2 Rating AC250V 3A (RY2, RY3, RY4) Coil Volt.; 12V 5 Printed Wiring Material Paper Base Phenolic Resin (UL 94V-0) Board 6 Transformer Rating Pri 220 - 240VAC Sec. 19.0VDC 7 Fan motor Rating 220 - 240VAC 50Hz 41W 4-Pole Type MLA999 Thermal Protector Cut off 135±10˚C (Internal) 8 Power Supply Rating 3G 2.5mm 2 – Cord H05VV-F – 9 Louver Motor Rating DC12V Type MP24GA Part Part Name Items Specifications No. AE-A18CJ AE-A24CJ 1 Terminal Board Rating 300V 25A 2 Fan motor Rating 450V 3μF 450V 3μF Capacitor 3 Running Rating 400V 50μF 400V 50μF Capacitor 4 Compessor Rating AC220 - 240V 50Hz 1500W AC220 - 240V 50Hz 2200W Type PH33VPET 2JS464D3AA02 5 Protector Manufacturer Ubukata Industries Co., Ltd. TEXAS INSTRUMENTS Type UP3QF0302-T09 (INTERNAL) 3HM529-36V (INTERNAL) Cutt off 130˚C 120˚C 6 Fan motor Rating 220 - 240VAC 50Hz 71W 6-Pole 220 - 240VAC 50Hz 75W 6-Pole Type MLB002 MLB015 Thermal protector Cut off 135˚C±5˚C (Internal) 7 Compressor Rating – AC250V 30A Relay (RY1) Coil volt: 200 -240VAC 8 Starting Rating – 330V 145μF Capacitor
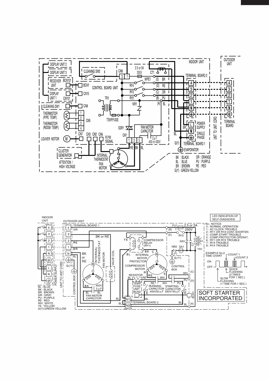
7 AY-AP18CJ AY-AP24CJ AE-A18CJ AE-A24CJ MICROCOMPUTER CONTROL SYSTEM Figure L-1. Electronic Control Circuit Diagram for AY-AP18CJ
AY-AP18CJ AY-AP24CJ AE-A18CJ AE-A24CJ 8 Figure L-2. Electronic Control Circuit Diagram for AY-AP24CJ
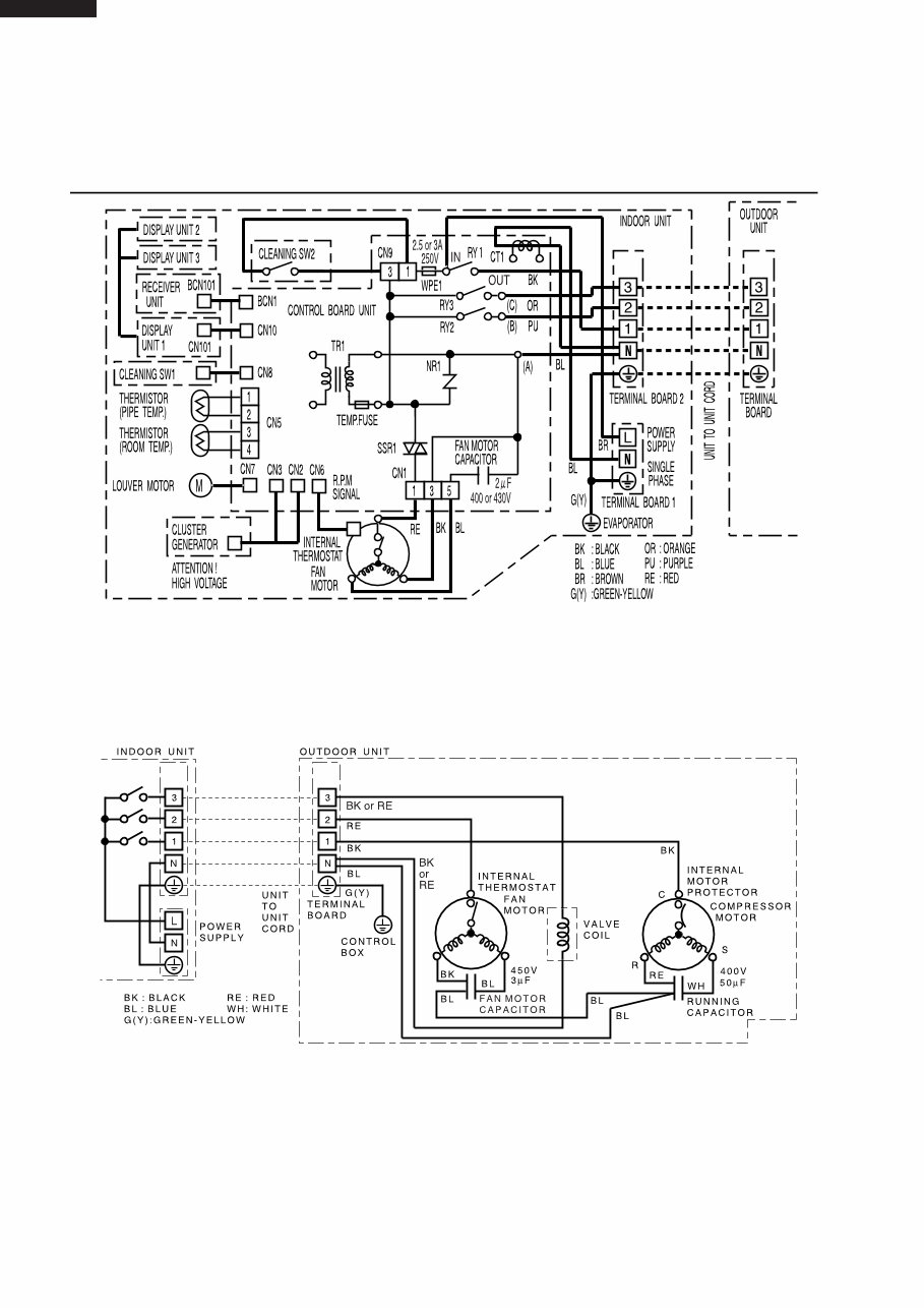
9 AY-AP18CJ AY-AP24CJ AE-A18CJ AE-A24CJ Figure L-3. Electronic Control Circuit Diagram for AE-A24CJ
AY-AP18CJ AY-AP24CJ AE-A18CJ AE-A24CJ 10 Figure L-4. Printed Wiring Diagram for AY-AP18CJ C2 R44 OUT C34 C33 TO TERMINALBOARD BOTTOM " N " TO TERMINALBOARD TOP " N " FROM TERMINALBOARD BOTTOM " L " , " BROWN " FROM CLEANING SWITCH 2 TO TERMINALBOARD TOP " 3 " TO TERMINALBOARD TOP " 2 " FROM CLUSTER GENERATOR FROM FAN MOTOR TO TERMINALBOARD TOP " N " FROM TERMINALBOARD TOP " 1 ", " BLACK " FROM FAN MOTOR FROM THERMISTOR FROM CLUSTER GENERATOR FROM CLEANING SWITCH 1 FROM LOUVER MOTOR BCN101 (BCN201)
This service repair manual in PDF format contains comprehensive information for repairing, servicing, rebuilding, or maintaining your Split System Room Air Conditioners. It covers every part and includes all the information found in costly CD-ROM manuals.
Service Manual Covers:
Specifications
External Dimensions
Wiring Diagrams
Electrical Parts
Microcomputer Control System
Functions
Troubleshooting Guide of Control Circuit
Refrigeration Cycle
Performance Curves
Refrigerant Pipe Installation Works
Disassembling Procedure
Replacement Parts List
Plus more...
Features:
Format: PDF
Easy to read and understand
Plenty of Pictures / Diagrams
High-Quality Printable Manual
Instant Access:
After your payment, you will have instant access to your manual. No shipping fee, no waiting on postal delivery, you can start doing your repairs today!
Recently Viewed
5,521,897Happy Clients
2,594,462eManuals
1,120,453Trusted Sellers
15Years in Business
Price:
Actual Price:
Sharp Air Conditioner AY-AP24CJ-AE-A24CJ Service Manual