calcActive())">
DAEWOO SOLAR 200W-lll Electrical Hydraulic Schematics Manual
What's Included?
Fast Download Speeds
Online & Offline Access
Access PDF Contents & Bookmarks
Full Search Facility
Print one or all pages of your manual

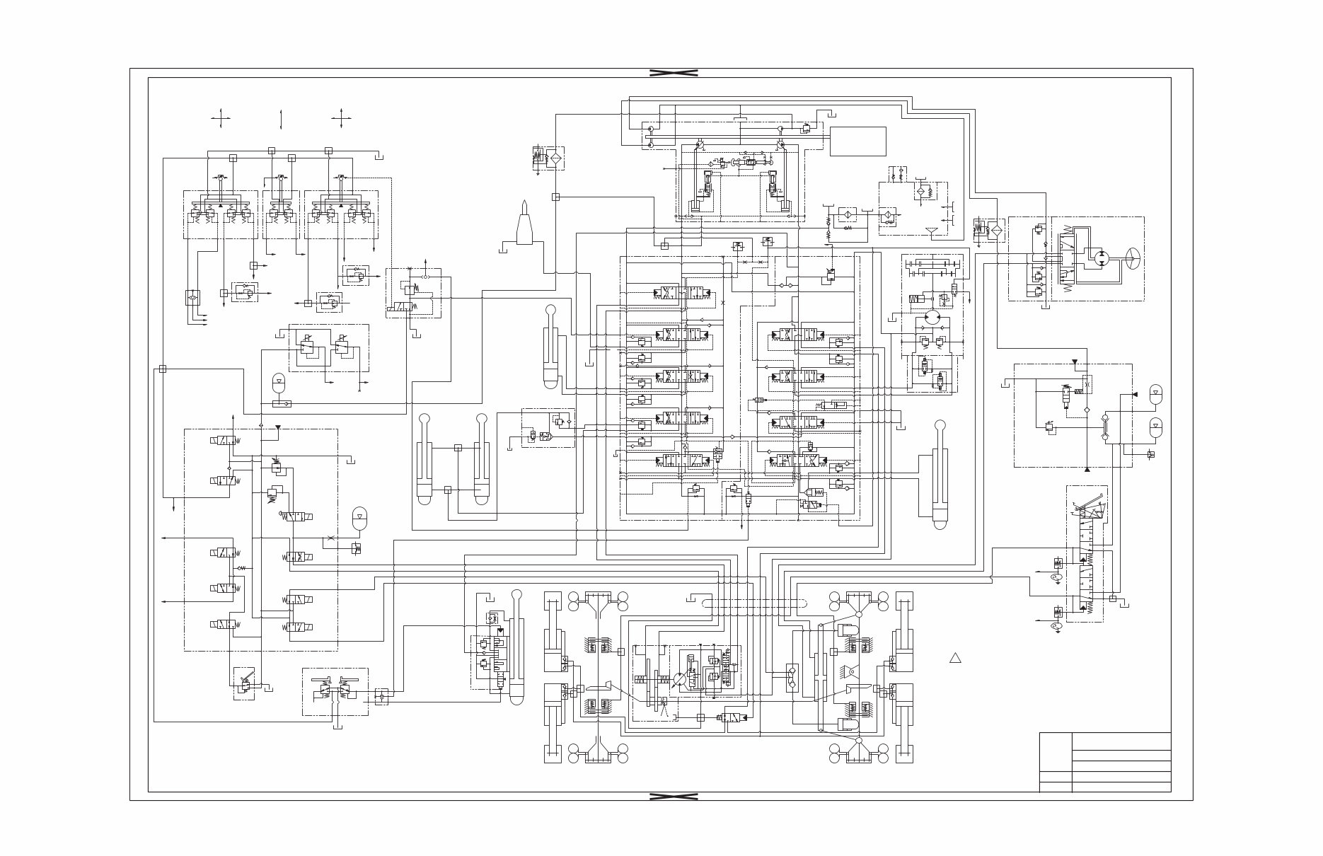
Page 32
SOLAR 200W-III (WITH ARTICULATED BOOM) (S/N 0449 AND UP)
T
P
MODULATION
TRAVEL
XBt
a
TS
C12
CRUISE
PG
PBR
XAt
REVERSE
C10
C11
FORWARD
A
T2
T2
P T
a
ARTIC
BOOM
BC
C5
CHOCK
C6
DOZER-STAB
2TH7Q67 10/1M
ARTICULATED BOOM CONTROL
TR
b
SD
LO-HI
C4
EMERGENCY
>6.0L/M at E/G idle
PUSH
C3
PARK
26±2bar
HI
LO
CH
PRESSURE WARNING
PA
C14
GTM
8B
0.7L
TRANSMISSION
P
b
300
ET22
Z-5A
R4
a
B
R
300
CROWD
XAa2
PS
PILOT SUPPLY
POWER MODE
C8
CUT-OFF
C7
TRAVEL MODE
C15
T/M & PILOT
SUPPLY V/V
PL
PZ
XAs
XSw
L
XBa1
R
XBs
XBa2
3 1
SWING
RIGHT
LEFT
4
ARM
2
DUMP
HORN
TH40K1066
1 3
4
PACKAGE V/V
33
C2
C1
13
±2
GTS
P1
T1
T2
LEVELLING
P
15B
0.35L
T
T2
EPPR V/V
Pbp
A2
DUMP
A1
Psp
BOOM
T
T1
P
BUCKET
BOOM
XAd XBd
XBb2
XAa1
DOZER/STAB
DOWN
2
UP
2 1
UP
BREAKER
XBb1
XBk
BUCKET/
OPTION
DUMP
1 4
XAb1
DOWN
3
CROWD
XAk
STAB
C 6
UP
T2
OPTION
1
2
3
TH40K1066
BREAKER
C2
C4
C3
C1
PZ2
OPTION
R3
1.5
2
DOWN
4
HV
BC
BR
MA
E
T
P2
LO M
P1
360 360
J HI
0
T2
MB
5
Fr
BL
TB
Pl
Y
2 3 1
A B
6 7 5 4
MAIN ROTARY
3 2 6 4
XAk2 Fl
PZ1
TOP ROTARY 1
Ck1
Pal
ARM
CRUISE
RELEASE
STOP
3bar
T2
FOOT BRAKE V/V
BL2
60Bar
T1
STOP
3bar
RELEASE
CRUISE
T1
P2
BL1
BR2
P1
BR1
STEER VALVE
53 kg.m/1600 RPM
146 PS/2000 RPM
DAEWOO D1146
XAt
XBa2
Aa2
XAa2
Ba2
PBp
T2
XAb1
Dr3
Bb1
XBb1
Ab1
320
320
ROD
HEAD
ARM2
BOOM1
Ao
XBk
Bk1
XAk
Ak1
Ck2
T2
320
320
320
At
Bo
XBo
XAo
320
HEAD
ROD
BUCKET
OPTION
BP
ARM1
HEAD
ROD
320
320
BOOM2
DOZER/STAB.
SP
SWING
HEAD
300
ROD
300
PZ2
XBt
Bt
R
TRAVEL
M2
A2
P2
Px
A3
A4
i=1.0465
PD
22.4cc/rev
8.6cc/rev
S4
S3
112cc/rev
19±0.5bar
Py
P3
MODE
POWER
PZ1
19±0.5bar
SWING
P4
Px
Pg
RELEASE
MRV
315
300
4.5
3.0
PL
A1
P1
M1
Rs
Pz
A3
A8V115ESBR6.2
S
10.7cc/rev
R4
40
T
T2
PS
Psp
XBa1
Ba1
XAa1
Aa1
op
Xop
XBb2
XSw
Dr2
T2
250
Ad
Bs
As
XAs
XBs
T2
Bd
XAd
XBd
Dr
Mu
LEFT
6.5 ±1.5sec
250
125 OUT
C2
G1
DIG LATCH
AC
AB
C4
C5
C3
T
T1
C6
R3
P1
GP
C1
103 IN
SUPPLY V/V
BRAKE
SWING
MOTOR
1.5
TANK
SH
PG
T1
1.5
0.5
R3
T2
1.5
L
200
T
200
R
P
120
292cc/rev
PSD
65bar
WARNING
LOW PRESS.
30B
2x0.7L
ACCB
ACCA
PSA
1.5
Bb1
HEAD
T3
Dr1
Pi
Pi
T3
BOOM HOLDING C/V WAS ADDED
Serial NO. 449 ~
REACTIONLESS
RIGHT
S/W
V/V
A B
x S/W REACTIONLESS V/V Ãß°¡ (96H420)
HYDRAULIC SCHEMATIC
DOOSAN INFRACORE
NO. 2010-8047
Model Solar 200W-III
Name
HAAE0980

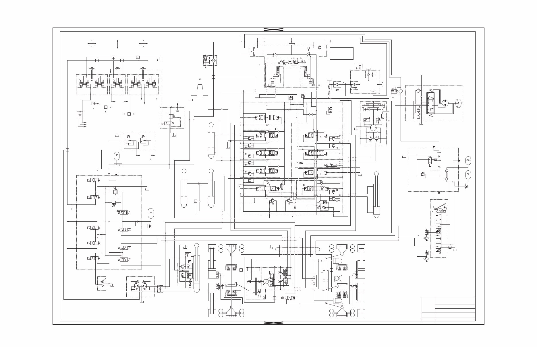
Page 31
SOLAR 200W-III (WITH ARTICULATED BOOM) (S/N 0001 THRU 0448)
XBa1
PZ1
Fl
TB
TRAVEL
MODULATION
a
CRUISE
C12
TS
XBt
C11
REVERSE
XAt
PBR
PG
FORWARD
C10
CUT-OFF
PILOT SUPPLY
PS
C7
C8
BOOM
ARTIC
ARTICULATED BOOM CONTROL
T P
T2
T2
P
T
2TH7Q67 10/1M
b
BC
a
Z-5A
ET22
300
b
A
E
360
T
MA
HI
DOZER-STAB
TR
SD
C6
CH
LO
CHOCK
C5
300
R
B
a
P
R4
26±2bar
PUSH
>6.0L/M at E/G idle
GTM
C14
PA
C3
C4
LO-HI
±2
13
C1
C2
33
EMERGENCY
T2
PARK
TRANSMISSION
0.7L
8B
PRESSURE WARNING
1 3 0
HI J
P1
M LO
P2
B
MB
360
6 5
T2
PBp
Ba2
XAa2
Aa2
XBa2
Fr
BL
Y
Pl
BR
MAIN ROTARY
4 5 7 6 2
A
4 2 3 1 TOP ROTARY
XAk2 Pal
Ck1
ARM1
BC
320
320
ROD
HEAD
HV
ARM
Aa1
XAa1
Ba1
STOP
BR2
BL1
BL2
STOP
3bar
RELEASE
CRUISE
CRUISE
RELEASE
3bar
T1
60Bar
FOOT BRAKE V/V
P2
T2
BR1
P1
T1
AB
AC
DIG LATCH
G1
LOW PRESS.
WARNING
65bar
A8V115ESBR6.2
19±0.5bar
112cc/rev
XAa2
4
CROWD
XBa1
PZ
SUPPLY V/V
T/M & PILOT
TRAVEL MODE
POWER MODE
PL
C15
XAs
L
XBa2
XBs
R
XSw
LEFT
1
DUMP
2
ARM
RIGHT
SWING
3
HORN
4
3 1
TH40K1066
2
BOOM
DUMP
LEVELLING
P1
GTS
T1
0.35L
15B
Pbp
A2 A1
Psp
BREAKER
PACKAGE V/V
EPPR V/V
T2
T
P
XBb2
XAa1
XBb1
XBk
T1
P T
C4
C1
C3
C2
Ab1
XBb1
Bb1
Dr3
XAb1
T2
BUCKET
T2
Ck2
Ak1
XAk
Bk1
XBk
HEAD
ROD
320
320
BP
BOOM1
ARM2
ROD
HEAD
320
320
BUCKET
XAo
XBo
Bo
At
Ao
Bt
XBt
XAt
320
320
OPTION
TRAVEL
T2
CROWD
OPTION
BUCKET/
XAd
1
UP
2
DOWN
DOZER/STAB
XBd
DOWN
XAb1
4 1
DUMP
UP
2
BOOM
C 6
STAB OPTION
XAk
3
R3
OPTION
PZ2
BREAKER
UP
TH40K1066
3
2
1
DOWN
4
1.5
P2
A2
M2
R
POWER
MODE
P3
Px
PZ2
PD
i=1.0465
S3
S4
8.6cc/rev
22.4cc/rev
A4
A3
S
SWING
±1.5sec
LEFT RIGHT
BOOM2
SWING
SP
T2
Dr2
XBb2
Xop
op
XBs
XAs
As
Bs
XSw
Psp
DOZER/STAB.
300
ROD
300
HEAD
300
315
MRV
6.5
Dr
Mu
XBd
XAd
Bd
T2
Ad
250
B A
250
MOTOR
SUPPLY V/V
GP
P1
C2
T1
T
C6
C3
C5
C4
ACCB
2x0.7L
30B
PSD
103 IN
C1
125 OUT
PSA
ACCA
R3
L
PG
SH
PS
200
T
200
BRAKE
292cc/rev
T1
1.5
Rs
A1
RELEASE
Pg
Px
P4
SWING
19±0.5bar
PZ1
Py
Pz
M1
P1
PL
3.0
4.5
R4
1.5
TANK
R3
0.5
1.5
T2
DAEWOO D1146
146 PS/2000 RPM
53 kg.m/1600 RPM
10.7cc/rev
A3
T2
T
40
R
1.5
120
P
STEER VALVE
Serial NO. 1 ~ 448
HYDRAULIC SCHEMATIC
DOOSAN INFRACORE
NO. 2010-8947
Model Solar 200W-III
Name
HAAE1000

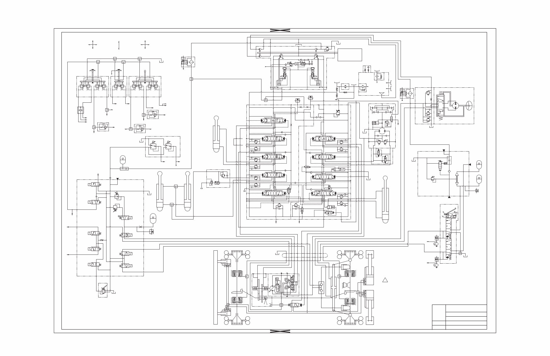
Page 30
SOLAR 200W-III (WITH STANDARD BOOM) (S/N 0449 AND UP)
DAEWOO D1146
53 kg.m/1600 RPM
146 PS/2000 RPM
Rs
MODULATION
T
P
a
TRAVEL
XBt
CRUISE
C12
TS
FORWARD
REVERSE
C10
C11
PAR
T2
DOZER-STAB
TR
CHOCK
C6
LO-HI
C4
C5
SD
PRESSURE WARNING
GTM
26±2bar
TRANSMISSION
CH
LO
HI
E
P1
HI J M
P2
LO
MA
T
360
TB
Y
BR
4
T2
360
MB
0
A B
4 2 1 3
5 2 6
MAIN ROTARY
BL
6 5 7
Pl
TOP ROTARY 1 3
XAa2
XAt
PILOT SUPPLY
CUT-OFF
C8
PS
PBR
PG
T/M & PILOT
SUPPLY V/V
TRAVEL MODE
POWER MODE
C15
PL
PZ
C7
XBs
XSw
XAs
R L
XBa2
>6.0L/M at E/G idle
13
EMERGENCY
C2
PUSH
PARK
C3
C14
P1
GTS
±2 33 C1
T2
PA
0.7L
8B
T1
LEVELLING
T2
P
15B
0.35L
XAa1
XBb2
XBb1
T
EPPR V/V
Pbp
A2
DUMP
Psp
A1
XBk
RIGHT
SWING
1
LEFT
ARM
4
DUMP
3 2
CROWD
XBa1
TH40K1066
4
HORN
1
2
3
TH40K1066
XAb1
DOZER/STAB
1
UP
XBd
2
DOWN
BOOM
4
UP
XAd
2
DOWN
UP
STAB
C 6
BUCKET/
DUMP
CROWD
1 3
OPTION
XAk2
XAk
2
T2
1.5
DOWN
3
4
1
HEAD
BUCKET
BOOM
Aa2
PBp
XAa2
Ba2
XAb1
Bb1
XBb1
Ab1
Dr3
T2
XBa2
HEAD
ROD
320
320
XBo
Ao
XAo
Bo
XBk
Bk1
Ak1
XAk
Ck2
320
320
ROD
320
320
XBt
XAt
Bt
At
Fr
PZ2
BC
PZ1
Fl XAk2
BOOM1
ARM2
BP
320
ROD
ARM1
Ck1
320
HV
HEAD
Pal
BOOM2
OPTION
BUCKET
SP
TRAVEL
DOZER/STAB.
SWING
300
300
ROD
HEAD
MRV
300
315
A2
P2
A3
R
M2
i=1.0465
8.6cc/rev
22.4cc/rev
A4
PD
S3
S
10.7cc/rev
PZ1
19±0.5bar
PZ2
Px
A8V115ESBR6.2
112cc/rev
Pg
Py
POWER
P3
MODE
19±0.5bar
A1
P1 P4
Px
RELEASE
SWING
R4
Pz
M1
PL
3.0
4.5
40
S4
A3
T2
T
ARM
RELEASE
CRUISE
FOOT BRAKE V/V
STOP
3bar
60Bar
BL2
RELEASE
CRUISE
3bar
STOP
BR1
P1
T1
BR2
BL1
P2
T2
T1
SWING
Ba1
Aa1
XAa1
Psp
XSw
Xop
op
XBb2
XBa1
Dr2
T2
Mu
XAd
Ad
XBd
Bd
XAs
Bs
As
XBs
A
250
RIGHT
MOTOR
T2
Dr
B
250
LEFT
T
T1
SH
PG
PS
±1.5sec 6.5
L
C6
AC
G1
DIG LATCH
C2
C3
125 OUT
C4
C5
WARNING
65bar
AB
LOW PRESS.
ACCA
30B
2x0.7L
ACCB
PSD
292cc/rev
BRAKE
SUPPLY V/V
P1
GP
103 IN
C1
200
T
200
R3
PSA
1.5
R3
TANK
0.5
T2
T1
1.5
R
1.5
120
P
STEER VALVE
1.5
Bb1
HEAD
T3
Dr1
Pi
Pi
T3
BOOM HOLDING C/V WAS ADDED
Serial NO. 449 ~
S/W
REACTIONLESS
V/V
x S/W REACTIONLESS V/V Ãß°¡ (96H420)
HYDRAULIC SCHEMATIC
DOOSAN INFRACORE
NO. 2010-8047
Model Solar 200W-III
Name
HAAE0970

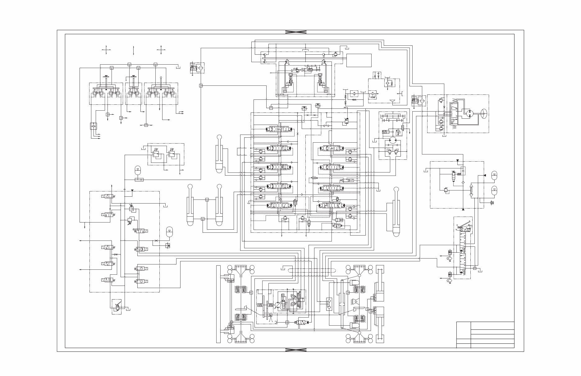
Page 29
SOLAR 200W-III (WITH STANDARD BOOM) (S/N 0001 THRU 0448)
LOW PRESS.
XBa2
C1
DIG LATCH
60Bar
FOOT BRAKE V/V
LO
P2
a
T2
TRAVEL
P
T
MODULATION
PA
HI
LO
CH
GTM
SD
C12
CRUISE
PAR
XBt
C11
REVERSE
TR TS
C6
DOZER-STAB
C5
CHOCK
PG
PBR
XAt
C10
FORWARD
PS
C8
CUT-OFF
PILOT SUPPLY
PUSH
>6.0L/M at E/G idle
C14
C3
C4
LO-HI
33
C2
EMERGENCY
13
C7
PARK
M
8B
0.7L
TRANSMISSION
26±2bar
PRESSURE WARNING
T2
Ba2
XAa2
PBp
Aa2
T
E
TB
360
MA
Pl
BR
Y
XAa1
Aa1
Ba1
3 1 2 0
J HI
P1
B A
MB
360
T2
6 2 5
7 5 6
MAIN ROTARY
4
BL
TOP ROTARY 3 1 4
XAk2
PZ2
Fr Fl
PZ1
Ck1
Pal
ARM1
BC
HEAD
HV
320
ROD
320
STOP
CRUISE
RELEASE
BL2
3bar
BL1
BR2
3bar
CRUISE
RELEASE
STOP
ARM
BR1
T1
T2
P2
T1
P1
AB
G1
AC
65bar
WARNING
125 OUT
i=1.0465
320
320
320
320
320
320
LEVELLING
T1
C15
POWER MODE
TRAVEL MODE
SUPPLY V/V
T/M & PILOT
PZ
GTS
P1
PL
0.35L
15B
XAs
XBa2
L R
XSw
XBs
EPPR V/V
T
P
T2
XBb2
XAa2
XAa1
XBb1
Ck2
DUMP
BOOM
Psp Pbp
A2 A1
T2
Dr3
Ab1
XBb1
Bb1
XAb1
BUCKET
XAk
Ak1
Bk1
XBk
XBk
At
Bo
XAo
Ao
XBo
Bt
XAt
XBt
4
2
XAb1
TH40K1066
DUMP
2 3
LEFT
1
SWING
RIGHT
HORN
DOWN
DOZER/STAB
XBa1
2
XBd
UP
CROWD
4
ARM
DOWN
2
XAd
UP
4
BOOM
1
STAB
C 6
TH40K1066
1
4
2
UP
3 3
DOWN
T2
XAk
XAk2
OPTION
3 1
CROWD
DUMP
BUCKET/
1.5
R
1
A4
A3
SWING
XBs
As
XAs
XBd
Ad
XAd
XBa1
XBb2
op
Xop
XSw
SP
ARM2
BOOM1
ROD
HEAD
BP
BUCKET
ROD
HEAD
BOOM2
SWING
OPTION
TRAVEL
DOZER/STAB.
HEAD
ROD
300
300
315
300
MRV
LEFT RIGHT
Dr2
T2
Bs
Psp
C2
T1
T
103 IN
C3
C6
T2
Bd
Mu
250
B
250
A
Dr
MOTOR
6.5
PS
PG
SH
R3
GP
L
200
T
200
146 PS/2000 RPM
53 kg.m/1600 RPM
DAEWOO D1146
A8V115ESBR6.2
M2
P2
A2
19±0.5bar
MODE
P3
POWER
Py
Px
PZ2
PD
112cc/rev
SWING
RELEASE
Px
P4 P1
A1
Pg
19±0.5bar
PZ1
1.5
4.5
3.0
PL
M1
Pz
Rs
R4
S4
S3
22.4cc/rev
8.6cc/rev
S
40
A3
10.7cc/rev
T
T2
TANK
1.5
T1
0.5
R3
1.5
T2
P
R
1.5
120
PSD
ACCB
2x0.7L
30B
C5
C4
PSA
ACCA
C1
P1
SUPPLY V/V
BRAKE
292cc/rev
STEER VALVE
Serial NO. 1 ~ 448
±2
±1.5sec
HYDRAULIC SCHEMATIC
DOOSAN INFRACORE
NO. 2010-8047
Model Solar 200W-III
Name
HAAE0990

Page 10
SOLAR 200W-III
A
B
BR
E
B
C
BR
R1
R2
ACC
PP
B
D
C
PREHEAT
CONTROLLER
7
2
8
4
3
1
6
5
1
7
2
8
CAR
STEREO
1
2
3
DC / DC
CONVERTER
( R H ) ( L H )
E
F- F+
P B
E
7
5
2
9
M
S
P
B
E
- + + -
ANTENNA
E
B
L
49a
R
L
56a
56b
15/1
N
TURN SIG SW
LO
UP
DIMMER SW
7(49a)
4(53a)
KD
EXIT1
EXIT2
F N
H
53c
J
53b
53
31b
WIPER
OFF
1
2 OFF ON
8
1
CN4-5
CONTROL UNIT
(2543-9025)
PILOT BUZZER
(2516-1102A)
INDICATOR
(2170-9004)
HI-LO S/V
T/M SELECTOR SWITCH
(2549-9085)*1/2
0.85W
CIGAR LIGHTER
(2545-9013)
0.85B
0.85B
P
+ -
DIODE 14
WASHER MOTOR
0.85B
WIPER MOTOR
HORN (H.F)
0.85RB
0.85B
0.5WR
BLINK UNIT
(2525-1009)
COMBINATION SWITCH
(2549-9085)*2/2
25W 25W 10/25W
REAR COMBI LAMP(L)
(2534-1117)
25/10W 25W 25W
REAR COMBI LAMP(R)
(2534-1117)
HEAD LAMP(L)
(2534-1134)
70/75W
HEAD LAMP(R)
(2534-1134)
75/70W
0.85BW
0.85GB
0.85BrR
0.85B
0.85GB
0.85WR
0.85RW
0.85R
0.85R
0.85RW
0.85WR
0.85BrR
0.85BW
0.85B
0.85Lg
0.85Lg
3W*2
LICENCE LAMP
(2534-1056)
0.85B
0.85BW
BACK BUZZER
(2516-1103)
FUSIBLE LINK
(2527-1020)
BATTERY RELAY
(2544-9024)
BATTERY
ALTERNATOR
(2502-6006)
5B
60B 60B
0.5BrW
2B
(2531-1003)
THREMO SWITCH
(66.27435-6007)
(2541-9016A)
+ - - +
SPEAKER
(2541-9014)*2
0.85R
0.85WR
0.85LW
0.85B
0.85BY
0.85GrR
0.85BW
0.85GrL
0.85RW
0.85R
STARTER RELAY
(2544-1009A)
0.85BW
5Y
5W
0.85BY
0.85RW
60B
2R
5W
0.85B 60B
5W
0.85WG
0.5B
STARTER
SWITCH
(2549-1136)
0.85BY
0.5LR
0.85Br
0.85BW
0.85WY
0.85GR 0.85BrR
STOP LAMP SWITCH
0.85Lg
0.85GB
0.85WB
ENG OIL PRESS SWITCH
(66.27441-7005)
BRAKE OIL PRESS SWITCH
(2549-9093)
ENG OIL FILTER SWITCH
(65.05560-6002)
0.85B
0.85B
0.85BY
0.85G
0.85BW
0.85B
(hi)
(low)
(hi)
(low)
(2516-9011)
FRONT COMBI LAMP(R)
4/10W 25W
25W 10/4W
FRONT COMBI LAMP(L)
clearance
turn sig
turn sig
back up
turn sig
stop
0.85WR
back up
turn sig
stop
0.85WR
0.85WR
C
(2506-1014)*2
(2549-9094)*2
0.85Br
0.85BY
(2523-9003)
PREHEAT
RELAY
(2544-9015)
(2554-9005A)
12V 100AH 12V 100AH
0.5Y
0.85G
0.85GY
0.5YG
FOWARD S/V
REVERSE S/V
FUSE BOX
(2510-1009)
2WR
5W
NOTE.
1. DIODE PART NO.
M
- +
1
2
3
AIR HANDLING UNIT
LOW PRESS. HIGH PRESS.
RECEIVER DRIER
0.85LW
0.85LB
0.85LB
0.85LY
0.85LW
0.85B
0.85BW
CUT OFF SW. CUT OFF SW.
0.85WR
0.85L
0.85BY
0.85RG
0.85Or
0.85WG 0.85GR
1.25LR
0.5LB
0.85B
BREAKER S/V (OPTION)
(BREAKER SW)
0.85RB
0.85BR
0.5B
T/S LAMP (L)
0.5GB
(2534-1111)
T/S LAMP (R)
(2534-1111)
0.5GB
0.5B
(2527-9004)
CIRCUIT BREAKER
0.5G
0.85LR
0.85L
(2523-9009A)
ENG STOP MOTOR
0.85B
0.5B
ENG STOP RELAY
0.85LY
0.85LW
(2544-9028)
(2549-1132D3)
M E L
OFF
1
2
I
BLOWER SWITCH
0.85BR
0.85LR
DIODE 8
0.85BR
(2204-6032)
0.85LW
0.85LY
0.85LR
(2920-9031)
0.85RW
2WR
2WR
0.85GB
AUTO IDLE SW
(E/G THROTTLE LEVER)
SWING CONTROL DIAL
T.P.S
(AUTO IDLE)
FUEL SENSOR
WATER TEMP SENSOR
+
SIG.
-
SIG.
+
(REAR PUMP)
PRESSURE SENSOR
R_PUMP PRESSURE
F_PUMP PRESSURE
BATTERY VOLTAGE
ENGINE RPM
FUEL LEVEL
WATER TEMPERATURE
(SW-9)
CN2-16
E/G CONTROL DIAL
LCD DISPLAY PANEL
LOADING
DIGGING
E/G THROTTLE CONTROLLER
LIFTING
LEVELLING
PRESSURE SENSOR
(FRONT PUMP)
(A)
(B)
PRESSURE SWITCH
EPOS-3 CONTROLLER
INSTRUMENT PANEL
HORN SW
OFF
ON
15
4
3
1 2
0.5B
WIPER TIMER
HAZARD SWITCH
(2549-9098)
2
1
OFF
M L E
1 2 R
F
R
CRU
ISE
PARK. BRAKE S/V
0.85B
RAM LOCK S/V
PROPORTIONAL V/V (PUMP)
(SWING SPEED)
(BOOM SPEED)
CN1-18
CN2-8
CN2-9
3
2
1
CN1-7
CN1-6
CN1-4
CN1-3
CN1-1
CN5-9
CN5-8
CN5-7
CN5-6
CN2-11
L6
L7
L5
L4
L1
L2
L6
L8
L7
L5
L4
56
LAMP SWITCH
(2549-1132D1)
0.85GY
0.85RB
0.85B
(2549-1135D2)
RETURN FILTER SW
0.85B
0.85BG PILOT FILTER SW
CN2-6
CN2-5
CN2-4
CN2-3
CN2-2
CN2-1
CN3-7
CN3-8
CN3-1
CN3-9
CN3-2
CN3-10
CN3-3
CN3-4
9
11
CN4-4
BREAKER SELECT SW
(2549-9098)
CN2-15
BRAKE SELECT SW
(2549-9097)
RAM LOCK SW
(2549-9096)
0.5B
30
30
86
86
87
87
85
85
FORWARD RELAY
(2544-9028)
REVERSE RELAY
(2544-9028)
H
HOUR METER
(2528-9040)
85
87a
86
30
0.5B
HI-LO RELAY
(2544-9028)
0.5B
0.85RY
0.85BrR
DOZER-STAB. S/V
(2549-1132D7)
AIR CON SWITCH
ON
OFF
L E
WASHER
J
0.85L
0.85YL
0.85LW
0.85LB
0.5RB
0.85L
0.5W
0.85LB
0.5WL
0.5WR
0.85Y
0.5G
0.85LY
0.85LY
0.85YL
0.85BL
0.85YR
0.85BR
0.85RG
0.85GR
0.85GY
0.5LG
0.5RW
0.85GrW
0.85Lg
0.85LgB
0.85LgR
0.85LgW
0.85LY
0.85WB
0.5GR
0.5G
0.5GB
0.85GrL
0.85GrR
0.85V
0.5L
0.85LY
0.5WG
0.85B
0.5B
0.85RL
0.85WR
0.85Y
L2
L3
0.85B
BRAKE FILTER SW
CHARGE
ENG OIL PRESS
AIR CLEANER
ENG OIL FILTER
RETURN FILTER
PILOT FILTER
0.5YB
(2549-1135D3)
T/M LOW PRESS. SW
CN5-1
ILLUMINATION
0.85YL
2R
0.5B
0.85BW
(2537-9002)
0.85YB
PREHEAT
L3
0.5RW
0.85BY
0.85BW
0.85G
0.85RB
0.85BG
0.5LB
CN4-1
CN4-12
CN4-3
CN4-6
CN4-8
CN4-7
CN4-9
CN4-10
CN4-11
5
2
4
3
1
13
10
12
11
6
CONSOLE ASS'Y
(2539-1053)
0.85LR
0.85BW
H
3
1.25LR
0.85LR
0.85B
1.25W
DIODE13
(2543-9027)
AIR CON CONTROLLER
0.5RW
0.5RB
0.85Or
0.85OrB
0.85YG
0.85Or
0.85Or
0.5BrR
0.5BrB
0.85B
0.85BrW
87
(2547-9038)
(2547-9035)
(2547-9036)
(2547-9036)
(2552-9005)
(2552-1001)
(2552-1001)
ENGINE SPEED SENSOR
(2547-9021)
(2549-1135D1)
(2543-1020A)
clearance
clearance
0.5WB
(2534-9007B) (2534-9008B)
1
2
3
3
2
1
(2544-9028)
WIPER RELAY
85
30
86
87
5
0.5B
(2538-9005)
0.85WL
0.5BrY
0.85LY
0.85R
0.85B
0.5W
DIODE 12
87a
(2544-9028)
LAMP RELAY
0.5B
0.85WY
0.5RY
0.85R
BRAKE OIL PRES
RAM LOCK
BRAKE FILTER
SPARE
TURN SIGNAL(R)
TURN SIGNAL(L)
PARKING(T/M)
BEAM
0.85G
1.25RY
0.85Or
2R
(2539-1047A)
(2543-1029)
87
86
30
85
CRUISE S/V
85
30
86
87a
0.5B
0.5B
0.85BY
CRUISE RELAY(2)
(2544-9028)
CRUISE RELAY(1)
(2544-9028)
0.85Br
0.85Y
0.85Or
0.85LB
4
6
2
3
1
4
5
8
6
10
17
16
15
CN1-19
CN1-20
E/G CONTROL MOTOR
(2523-9012)
9
0.85B
12
0.85R
0.5G
0.5GB
0.5Br
0.5BrY
CN5-5
CN5-4
CN5-3
CN5-2
CN5-12
CN5-13
CN5-16
CN5-18
CN5-14
CN1-13
CN1-12
CN1-14
CN1-15
CN1-11
CN2-10
CN5-11
CN5-10
0.5GR
0.5G
0.5GB
0.85RG
0.85R
0.5WL
0.5GY
0.5GL
0.5GW
0.5LR
0.5LW
0.5RG
0.85B
0.5WG
0.5LW
0.5LR
0.5GW
0.5GL
0.85BY
0.85YB
0.85YB
DIODE 11
DIODE 3
DIODE 5
DIODE 6
DIODE 7
0.5GL
0.5RG
0.85GW
0.85LR
CN1-2
0.5L
0.5LG
0.5RW
0.5B
3
11
4
12
0.5BrW
0.85WB
0.85GW
0.85RG
10
0.5RW
0.85RL
0.85RL
CN4-2
0.85WG
0.85RB
CN5-15
CN1-16
0.5BrY
0.5R
0.5Lg
0.5GB
0.85RB
CN1-17
FUEL PUMP ASS'Y(OPTION)
- +
P
9
(2544-9028)
PILOT RELAY
5
4
0.85B
0.5YG
0.5YG
0.85BrR
0.85P
0.85B
KEY SWITCH CONNECTION
ACC
OFF
TML
PST
C R2 R1 BR B
START
ON
PREHEAT
HORN (L.F)
(2516-9012)
FUEL PUMP SW FUEL PUMP
III II I
POWER
MODE
(SW-1~3)
(LED-1~3)
WORK
MODE
(SW-4~7)
(LED-4~7)
(SW-8,LED-8)
DISPLAY CHANGE SW
1 2
3
0.5RW
0.5R
2W
DIODE 2, 5~10, 13 ; 2548-1014
L1
S
N
E P B
STARTER CONTROLLER
0.85B
(2523-9003)
0.5LR 0.5WG
5W
(2401-9173)
2W
0.5W
0.5RG
0.85R
0.5WR
0.5BrR
POWER MAX SW(JOYSTICK RH)
0.85B
1.25W
LO
HI
CW
CW
2
1
3
0.85RB
0.85R
C B
H
15L
15B
AIR HEATER
22V 2.6KW
(2545-9008)
0.85BR
A
50
30
31
STARTER
(65.26201-7049)
60B
15R
0.85LY
COMPRESSOR
(2208-6011A)
DIODE 9
0.85B
A/I
O/H
W/M(b)
W/M(a)
P/M(b)
P/M(a)
A/I OUT
O/H OUT
1 ¼Ó OUT
L/M OUT
+(5V)
SIG
GND
PRESSURE SWITCH
(TRAVEL)
(2549-1135D1)
0.85B
0.85WB
0.85RG
0.85RL
0.85R
DOZER STAB SW
0.85WG
HORN RELAY
(2544-9028)
0.85BY
0.5GR
HORN SW(JOYSTICK LH)
0.5B
0.5BY
0.85RB
PILOT CUT OFF SW
(2549-1134)
0.85WG
0.85GrW
DIODE 1
PILOT CUT OFF S/V
(2534-9063)X2
ROOM LAMP
0.85RW
0.85RW
0.85B
+
-
0.85RG
0.85B
0.85B
0.85B
0.85B
0.85B
0.85RG
EPPR V/V ASS'Y
(2420-9313)
0.85B
0.85B
0.85YG
(C5)
(C3)
(C4)
(C10)
(C11)
(C12)
(C8)
(C6)
(C15)
DIODE 4
0.5BrW
CN1-5
0.85WR
CN1-9
2
0.5YB
0.5Y
3
CN1-10
GND
SIG
0.5YR
1
CN1-8
+(5V)
HI
LO
7 5
+(5V)
SIG
GND
SIG
+(5V)
GND
A/I
L/M
1 ¼Ó
O/H
GND
VB
0.85WG
0.85WG
0.5WB
0.5RB
0.85LW 0.85B
0.85LB
CN4 AMP 070 12P
AMP 070 18P CN5
AMP MIC 17P CN2
AMP MIC 21P CN1
GND
AMP MIC 13P CN3
-
SIG
AMP MIC 17P CN6
clearance
0.5WB
TML
FUN.
15R
5Y
0.85Lg
0.85GB
0.85RW
1.25W
DIODE 2
0.85RW
0.85GrL
0.85GrR
0.85GR
0.85W
0.85GY
0.85WL
0.85WB
0.85LY
0.85WR
0.5YB
0.5Y
0.5YR
0.5GR
0.5GrR
0.5GrL
0.5RG
0.5BrY
0.85LgW
0.85LgR
0.85LgB
0.85Lg
(2544-9028)
RAM LOCK LAMP RELAY
0.5RG
0.85YL
85
87a
30
86
87a
87a
87
0.85Y
0.85WG
0.5Y
0.5GL
0.5B
DIODE 1, 3, 4, 11, 12, 14 ; 2548-1015
1.25RG
(2549-1132D8)
(2534-1127)*2
BOOM LAMP(70/75W)
0.85R
0.85B
0.85RG
BOOM LAMP SW
OFF
1
2
M L E
CABIN LAMP ASS'Y (OPTION PARTS)
1.25RW
0.5B
0.85B
0.85RW
0.85B
CABIN LAMP
(2534-1127 )x2
0.85RW
1
CABIN LAMP SWITCH
+(2190-2036D4)
LAMP RELAY
(2544-9028)
0.5WR
(2549-9098 )
0.5RY
0.5B
9 10
7
5
1.25RY
1.25RY
RELIEF PRESS. UP S/V
1.25R 1.25RY
CW
0.85RG
0.85B
0.85R
DIODE 16
0.85BrB
ÁÖÂ÷
0.85YB
DIODE 10
0.85BrB
2B 2WR
(A1)
CN3-2
(A2)
ÁÖÇà
ÀÛ¾÷
15A 15A 15A 10A
10A
10A
10A 10A
16
5 6
3
7
2
15
8
1
12
9
13
10
14
11 4
15A
17
18 19 20
15A 15A 15A 15A
10A
E
P2
B
P1
A
85
87
87a
86
30
A
5
9
1
7
10
5
9
7
1
10
3
5
1
2
4
30
86
87a
87
85
6
AMP MIC 17P
10 9 11 12 17 16 14 15 13
6 5 7 4 3 2 10 1 9
20
2
12
AMP MIC 21P
13 11 14 15 21 19 17 18 16
7 6 8 5 4 3 1 2 3 6 5 4
10 11 12 13 9 8 7
AMP MIC 13P
TERMINAL NO FOR CONTROLLER
(CN3)
1 8
(CN2) (CN6)
(CN1)
(CN4)
AMP 070 12P
6 7 8 12 11 9
4 5 3 2 1
10 13
1 2 3 8 7
12 17 18 11 10 9
(CN5)
4
14 15
5
16
6
AMP 070 18P
AMP MIC 13P
7 8 9 13 12 11 10
4 5 6 3 2 1 1 2 3 6 5 4
10 11 12 13 9 8 7
AMP MIC 13P
TERMINAL NO FOR INSTRUMENT PANEL TERMINAL NO FOR CONSOLE ASS'Y TERMINAL NO FOR CONTROL UNIT
30
85
87a
87
86
86
30
85
87
87a
NO
COM
NC
(RH)
(LH)
85
86
87
87a
30
ELECTRICAL DIAGRAM
DOOSAN INFRACORE
NO. 2010-8047
Model Solar 200W-III
Name
HAAE0960
You're Reading a Preview
What's Included?
Fast Download Speeds
Online & Offline Access
Access PDF Contents & Bookmarks
Full Search Facility
Print one or all pages of your manual
$48.99
Viewed 69 Times Today
Loading...
Secure transaction
What's Included?
Fast Download Speeds
Online & Offline Access
Access PDF Contents & Bookmarks
Full Search Facility
Print one or all pages of your manual
$48.99
The DAEWOO DOOSAN SOLAR 200W-III EXCAVATOR ELECTRICAL HYDRAULIC SCHEMATICS MANUAL contains detailed schematics for the electrical and hydraulic circuits of the Daewoo Solar 200W-III excavator. This manual is useful for both professional mechanics and DIY enthusiasts.
- ELECTRICAL CIRCUITS DAEWOO SOLAR 200W-III PUBLICATION NUMBER: HAAE0960
- ELECTRICAL CIRCUITS DAEWOO SOLAR 200W-III (WITH STANDARD BOOM) (S/N 0001 THRU 0448) PUBLICATION NUMBER: HAAE0990
- HYDRAULIC CIRCUITS DAEWOO SOLAR 200W-III (WITH STANDARD BOOM) (S/N 0449 AND UP) PUBLICATION NUMBER: HAAE0970
- HYDRAULIC CIRCUITS DAEWOO SOLAR 200W-III(WITH ARTICULATED BOOM) (S/N 0001 THRU 0448) PUBLICATION NUMBER: HAAE1000
- HYDRAULIC CIRCUITS DAEWOO SOLAR 200W-III (WITH ARTICULATED BOOM) (S/N 0449 AND UP) PUBLICATION NUMBER: HAAE0980
File Format: .PDF
Pages: 5
Size: 1.4Mb
Manual Language: English
If you have any questions or are in search of a specific manual, feel free to reach out. Have a great day!